サンビル
ここに注目!地下鉄東西線西28丁目駅直結ビルです。フレッシュネスバーガーや郵便局も入って便利です。
| 賃料・費用 |
18万2,424円
(+管理費等 6万808円)
坪単価:約6,600円/坪
敷99万5,040円仲18万2,424円
|
|---|---|
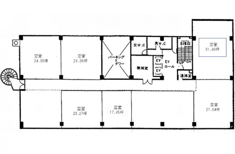
| 専有面積 | 91.38m² (27.64坪) |
| 住所 | 北海道札幌市中央区北三条西28丁目2-1 |
| 交通 | 西28丁目駅(徒歩1分)|円山公園駅(徒歩10分)|西18丁目駅(徒歩20分)|桑園駅(徒歩30分) |
| 階/階建 | 3階 / 6階建(地下2階) |
| 築年月 | 築50年(1975年2月) |
| 駐車場 |
あり (2万2,000円/台)
|
【WEB面談可】
空室確認、見学、詳細を知りたい方はこちら!
お電話の際は「連合隊の物件」とお伝えください。
情報掲載期限:あと29日(更新日 2025/12/26)
- 物件写真・概要
- 周辺地図
-
【WEB面談可】
空室確認、見学、詳細を知りたい方はこちら!おすすめポイント
- 駅徒歩1分以内
- 駅前立地
- 駐車場あり
- 男女別トイレ
交通色がついているアイコンをクリックすると、本物件までの道順を見ることができます。
物件概要
所在階/建物の階建 3階 / 地上6階 地下2階建 主要採光面 構造 鉄骨鉄筋コンクリート(SRC)造 間取り 契約期間 権利金 住宅保険 その他費用 毎月の費用 - 冷暖房費:4万6,822円
引渡し 相談 管理人 取引態様 仲介 物件No 22/4/5202/13 設備・特徴 - 駅前立地
- 商店街に面す
- 幹線道路沿い
- 照明器具付
- セントラル空調
- 男女別トイレ
- 男女別トイレ(共用部)
備考 事務所 主な周辺施設色がついているアイコンをクリックすると、本物件までの道順を見ることができます。
-
ホームページはこちら
北海道知事 石狩(1) 第8820号
いちりん開発(株) 【WEB面談可】〒001-0033
TEL:011-299-4905
FAX:011-299-4906
営業時間:9:00~18:00
定休日:毎週 土曜・日曜・祝日
- 加入団体
- (公社)全日本不動産協会、(一社)不動産協会
- 保証協会
- (公社)不動産保証協会
- 公正取引協議会
- 未加盟
※連合隊は物件情報の精度向上に努めています:「物件情報に誤りがある」「成約済みである」などお気付きの点がございましたらこちらよりご連絡ください。
写真枚数:2枚
札幌市内の小規模賃貸事務所(10万円以下)を数多くご紹介しております。
地下鉄から徒歩10分以内で通いやすくてお洒落な賃貸事務所を数多くご用意しておりますので、ぜひお問合せ下さいませ。 ★札幌小規模賃貸事務所: https://jimusyokensaku.ichi-rin.jp