ここに注目!札幌中心部、ビジネスの新たな拠点にふさわしい「札幌イーストスクエア」のご紹介です。 地下鉄東西線「バスセンター前」駅まで徒歩4分、複数路線が交差する「大通」駅へも徒歩6分、JR「札幌」駅も徒歩10分と、高いアクセス性が魅力の立地です。 約74坪の広々とした路面テナントは、元調剤薬局跡地。スケルトン渡しのため、貴社のビジネスに合わせて自由に空間をデザインできます。医療、美容・健康、サロン、店舗、事務所など、幅広い業種に対応可能です。 24時間セキュリティーや個別空調、共用部の男女別トイレなど、快適なビジネス環境をサポートする設備も充実。周辺には病院、コンビニ、スーパーも揃い、利便性も良好です。 この機会に、貴社の事業をさらに発展させる理想の空間をぜひご検討ください。まずはお気軽にお問い合わせください。
| 賃料・費用 |
163万7,240円
(+管理費等 -円)
坪単価:約2.2万円/坪
敷893万400円仲163万7,240円
|
|---|---|
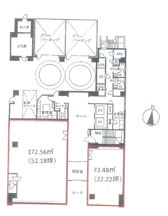
| 専有面積 | 246.02m² (74.42坪) |
| 住所 | 北海道札幌市中央区北一条東1丁目6-5 |
| 交通 | 豊水すすきの駅(徒歩13分)|札幌駅(徒歩10分)|西4丁目駅(徒歩11分)|大通駅(徒歩6分)|バスセンター前駅(徒歩4分)道順を見る |
| 階/階建 | 路面 / 8階建(地下1階) |
| 築年月 | 築29年(1996年2月) |
| 駐車場 |
あり (1万6,500円/台)
|
【WEB面談可】
空室確認、見学、詳細を知りたい方はこちら!
お電話の際は「連合隊の物件」とお伝えください。
情報掲載期限:あと27日(更新日 2025/12/26)
- 物件写真・概要
- 周辺地図
-
【WEB面談可】
空室確認、見学、詳細を知りたい方はこちら!おすすめポイント
- 路面店
- 駅徒歩5分以内
- 複数路線利用可
- 駅前立地
- 幹線道路沿い
- 駐車場あり
- スケルトン
- 男女別トイレ
- 24時間セキュリティー
- 出店するなら…この業種がおすすめ!
- 飲食全般(重飲食含む)

- 喫茶・カフェ(軽飲食)

- バー・クラブ・スナック

- 小売・物販

- 美容・健康・介護

- 医療

- 教育・スクール

- 事務所

- アミューズメント

交通色がついているアイコンをクリックすると、本物件までの道順を見ることができます。
- 豊水すすきの駅札幌市営地下鉄東豊線徒歩13分
- 札幌駅札幌市営地下鉄南北線、札幌市営地下鉄東豊線、JR札沼線、JR千歳線、JR函館本線徒歩10分
- 西4丁目駅札幌市電山鼻線徒歩11分
- 大通駅札幌市営地下鉄南北線、札幌市営地下鉄東豊線、札幌市営地下鉄東西線徒歩6分
- バスセンター前駅札幌市営地下鉄東西線徒歩4分
物件概要
所在階/建物の階建 1階 / 地上8階 地下1階建 主要採光面 構造 鉄骨鉄筋コンクリート(SRC)造 間取り 契約期間 権利金 住宅保険 出店推奨業種 美容・健康・介護、医療、事務所 出店不可業種 引渡し 相談 管理人 取引態様 仲介 物件No 21/4/5202/15 設備・特徴 - 複数路線利用可
- 駅前立地
- 幹線道路沿い
- エレベーター
- 個別空調
- 24時間セキュリティー
- スケルトン
- 路面店
- 照明器具付
- 男女別トイレ(共用部)
- 男女別トイレ
備考 薬局・医療・サロン・店舗・事務所等業種はご相談ください。医療系テナント大歓迎。 主な周辺施設色がついているアイコンをクリックすると、本物件までの道順を見ることができます。
-
ホームページはこちら
北海道知事 石狩(1) 第8820号
いちりん開発(株) 【WEB面談可】〒001-0033
TEL:011-299-4905
FAX:011-299-4906
営業時間:9:00~18:00
定休日:毎週 土曜・日曜・祝日
- 加入団体
- (公社)全日本不動産協会、(一社)不動産協会
- 保証協会
- (公社)不動産保証協会
- 公正取引協議会
- 未加盟
※連合隊は物件情報の精度向上に努めています:「物件情報に誤りがある」「成約済みである」などお気付きの点がございましたらこちらよりご連絡ください。
写真枚数:11枚
札幌市内の小規模賃貸事務所(10万円以下)を数多くご紹介しております。
地下鉄から徒歩10分以内で通いやすくてお洒落な賃貸事務所を数多くご用意しておりますので、ぜひお問合せ下さいませ。 ★札幌小規模賃貸事務所: https://jimusyokensaku.ichi-rin.jp