ユニバース1
ここに注目!札幌市南区川沿に、新しいビジネスの拠点をお探しの方にぴったりの物件「ユニバース1」をご紹介します。 約165m²の広々とした3階ワンフロアを贅沢にご利用いただけるスケルトン物件なので、お客様の理想とする店舗や事務所を自由にデザインしていただけます。エレベーター完備で、お客様や従業員の方も快適にアクセス可能です。 お車でのアクセスも便利な立地で、駐車場は4台分も確保できるのが嬉しいポイント。幹線道路沿いに位置しており、視認性も高く、集客にも繋がりやすいでしょう。周辺にはコンビニやスーパー、病院、銀行などが揃い、日々の業務や生活にも大変便利な環境です。 美容・健康・介護、教育・スクール、事務所など、幅広い業種に対応可能。礼金0円で初期費用を抑えながら、夢のビジネスをスタートさせませんか?この機会にぜひ、お気軽にお問い合わせください。
この物件の契約期間は 5年間です。
定期借家物件は、賃貸借契約期間満了後、原則として契約の更新ができない物件です。再契約の可否については不動産会社にお問合せください。
| 賃料・費用 |
27万5,000円
(+管理費等 2万2,000円)
坪単価:約5,504円/坪
敷75万円礼なし仲27万5,000円
|
|---|---|
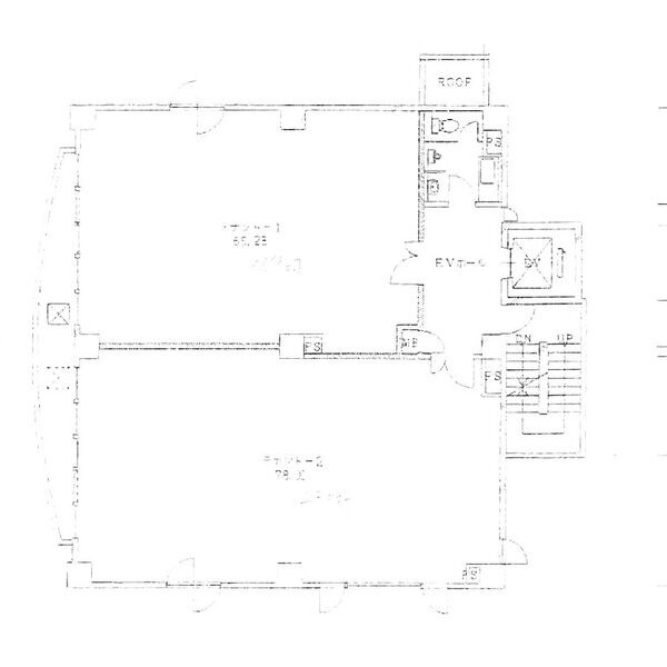
| 専有面積 | 165.21m² (49.97坪) |
| 住所 | 北海道札幌市南区川沿三条2丁目5-1 |
| 交通 | 真駒内駅(車で9分)道順を見る |
| 階/階建 | 3階 / 6階建 |
| 築年月 | 築27年(1999年1月) |
| 駐車場 |
あり (1万3,200円/台) 駐車可能台数:4台
|
【WEB面談可】
空室確認、見学、詳細を知りたい方はこちら!
お電話の際は「連合隊の物件」とお伝えください。
情報掲載期限:あと30日(更新日 2026/4/30)
- 物件写真・概要
- 周辺地図
-
【WEB面談可】
空室確認、見学、詳細を知りたい方はこちら!おすすめポイント
- 幹線道路沿い
- 駐車2台以上可
- スケルトン
- 出店するなら…この業種がおすすめ!
- 飲食全般(重飲食含む)

- 喫茶・カフェ(軽飲食)

- バー・クラブ・スナック

- 小売・物販

- 美容・健康・介護

- 医療

- 教育・スクール

- 事務所

- アミューズメント

交通色がついているアイコンをクリックすると、本物件までの道順を見ることができます。
物件概要
所在階/建物の階建 3階 / 地上6階建 主要採光面 構造 鉄筋コンクリート(RC)造 間取り 契約期間 定期借家(5年間) 権利金 住宅保険 出店推奨業種 美容・健康・介護、教育・スクール、事務所 出店不可業種 引渡し 相談 管理人 取引態様 仲介 物件No 設備・特徴 - 給排水設備
- ガス暖房
- スケルトン
- エレベーター
- 幹線道路沿い
備考 店舗・事務所・教室・サロン・福祉・医療・治療院等、業種はご相談ください。 主な周辺施設色がついているアイコンをクリックすると、本物件までの道順を見ることができます。
-
ホームページはこちら
北海道知事 石狩(1) 第8820号
いちりん開発(株) 【WEB面談可】〒001-0033
TEL:011-299-4905
FAX:011-299-4906
営業時間:9:00~18:00
定休日:毎週 土曜・日曜・祝日
- 加入団体
- (公社)全日本不動産協会、(一社)不動産協会
- 保証協会
- (公社)不動産保証協会
- 公正取引協議会
- 未加盟
※連合隊は物件情報の精度向上に努めています:「物件情報に誤りがある」「成約済みである」などお気付きの点がございましたらこちらよりご連絡ください。
写真枚数:15枚
札幌市内の小規模賃貸事務所(10万円以下)を数多くご紹介しております。
地下鉄から徒歩10分以内で通いやすくてお洒落な賃貸事務所を数多くご用意しておりますので、ぜひお問合せ下さいませ。 ★札幌小規模賃貸事務所: https://jimusyokensaku.ichi-rin.jp