ここに注目!1階路面テナント事務所向き。 駐車場6台確保可能。 JR千歳駅徒歩圏内。
| 賃料・費用 |
78万5,895円
(+管理費等 -円)
坪単価:約1.7万円/坪
礼なし仲78万5,895円
保証金:なし
|
|---|---|
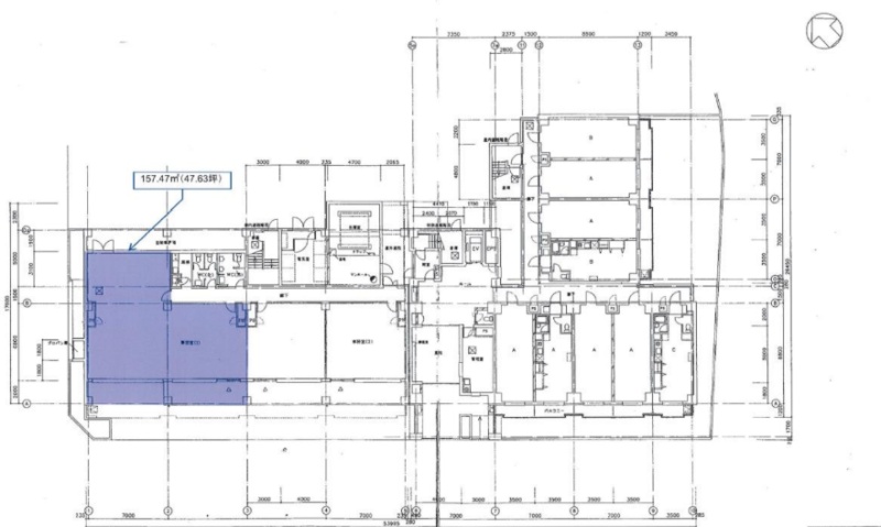
| 専有面積 | 157.46m² (47.63坪) |
| 住所 | 北海道千歳市末広7丁目2-1 |
| 交通 | 千歳駅(徒歩2分)道順を見る |
| 階/階建 | 路面 / 11階建 |
| 築年月 | 築28年(1998年1月) |
| 駐車場 |
あり 駐車可能台数:6台
|
【WEB面談可】
空室確認、見学、詳細を知りたい方はこちら!
お電話の際は「連合隊の物件」とお伝えください。
情報掲載期限:あと29日(更新日 2026/3/19)
- 物件写真・概要
- 周辺地図
-
【WEB面談可】
空室確認、見学、詳細を知りたい方はこちら!おすすめポイント
- 路面店
- 駅徒歩3分以内
- 駅前立地
- 幹線道路沿い
- 駐車2台以上可
- 出店するなら…この業種がおすすめ!
- 飲食全般(重飲食含む)

- 喫茶・カフェ(軽飲食)

- バー・クラブ・スナック

- 小売・物販

- 美容・健康・介護

- 医療

- 教育・スクール

- 事務所

- アミューズメント

交通色がついているアイコンをクリックすると、本物件までの道順を見ることができます。
物件概要
所在階/建物の階建 1階 / 地上11階建 主要採光面 南 構造 鉄筋コンクリート(RC)造 間取り 契約期間 更新料/更新手数料 なし 権利金 住宅保険 出店推奨業種 美容・健康・介護、教育・スクール、事務所 出店不可業種 引渡し 相談 管理人 取引態様 仲介 物件No 設備・特徴 - 駅前立地
- 路面店
- 幹線道路沿い
- 男女別トイレ(共用部)
- 個別空調
備考 路面店 テナント向き 事務所向き 敷金発生します。金額は業種・規模等により確定します。 主な周辺施設色がついているアイコンをクリックすると、本物件までの道順を見ることができます。
-
ホームページはこちら
北海道知事 石狩(1) 第8820号
いちりん開発(株) 【WEB面談可】〒001-0033
TEL:011-299-4905
FAX:011-299-4906
営業時間:9:00~18:00
定休日:毎週 土曜・日曜・祝日
- 加入団体
- (公社)全日本不動産協会、(一社)不動産協会
- 保証協会
- (公社)不動産保証協会
- 公正取引協議会
- 未加盟
※連合隊は物件情報の精度向上に努めています:「物件情報に誤りがある」「成約済みである」などお気付きの点がございましたらこちらよりご連絡ください。
写真枚数:3枚
札幌市内の小規模賃貸事務所(10万円以下)を数多くご紹介しております。
地下鉄から徒歩10分以内で通いやすくてお洒落な賃貸事務所を数多くご用意しておりますので、ぜひお問合せ下さいませ。 ★札幌小規模賃貸事務所: https://jimusyokensaku.ichi-rin.jp