備広札幌すすきのビル2
ここに注目!「すすきの」駅からも徒歩3分と、複数路線が利用できる大変便利な駅近立地が魅力です。アクセスもスムーズで、ビジネスチャンスを広げるのにぴったり。 周辺には銀行やコンビニはもちろん、人気の飲食店やショッピング施設が充実しており、日々の業務や休憩、お食事にも困りません。商店街に面しているのも嬉しいポイントです。 188.78㎡の空間は、様々な業種に対応可能。定期借家10年の契約期間で、長期的な事業計画も安心です。この素晴らしい環境で、新しいビジネスの可能性を広げてみませんか?
この物件の契約期間は 10年間です。
定期借家物件は、賃貸借契約期間満了後、原則として契約の更新ができない物件です。再契約の可否については不動産会社にお問合せください。
| 賃料・費用 |
100万5,840円
(+管理費等 25万1,460円)
坪単価:約1.8万円/坪
敷548万6,400円礼なし仲100万5,840円
敷引・償却金:なし
|
|---|---|
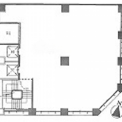
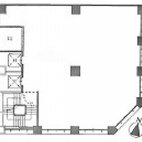
| 専有面積 | 188.78m² (57.1坪) |
| 住所 | 北海道札幌市中央区南四条西5丁目5 |
| 交通 | すすきの駅(徒歩3分)|資生館小学校前駅(徒歩2分)|狸小路駅(徒歩5分)道順を見る |
| 階/階建 | 5階 / 8階建(地下2階) |
| 築年月 | 築56年(1969年12月) |
| 駐車場 |
なし
|
【WEB面談可】
空室確認、見学、詳細を知りたい方はこちら!
お電話の際は「連合隊の物件」とお伝えください。
情報掲載期限:あと21日(更新日 2026/2/18)
- 物件写真・概要
- 周辺地図
-
【WEB面談可】
空室確認、見学、詳細を知りたい方はこちら!おすすめポイント
- 即入居可
- 駅徒歩3分以内
- 複数路線利用可
- 駅前立地
- 商店街に面す
- 出店するなら…この業種がおすすめ!
- 飲食全般(重飲食含む)

- 喫茶・カフェ(軽飲食)

- バー・クラブ・スナック

- 小売・物販

- 美容・健康・介護

- 医療

- 教育・スクール

- 事務所

- アミューズメント

交通色がついているアイコンをクリックすると、本物件までの道順を見ることができます。
物件概要
所在階/建物の階建 5階(5F) / 地上8階 地下2階建 主要採光面 構造 鉄筋コンクリート(RC)造 間取り 契約期間 定期借家(10年間) 権利金 住宅保険 出店推奨業種 飲食全般(重飲食含む)、美容・健康・介護、教育・スクール 出店不可業種 引渡し 即時 管理人 取引態様 仲介 物件No 設備・特徴 - エレベーター
- 複数路線利用可
- 駅前立地
- 商店街に面す
備考 ・ハウスクリーニング料 ※不要 ・シリンダー交換無し ・内装管理費 契約時または退去時 330,000円(税込) ・町内会費 月額 ※確認中 ・共同看板料 月額11,000円(税込) ※24時間サポート料 ※不要 テナント向き 主な周辺施設色がついているアイコンをクリックすると、本物件までの道順を見ることができます。
-
ホームページはこちら
北海道知事 石狩(1) 第8820号
いちりん開発(株) 【WEB面談可】〒001-0033
TEL:011-299-4905
FAX:011-299-4906
営業時間:9:00~18:00
定休日:毎週 土曜・日曜・祝日
- 加入団体
- (公社)全日本不動産協会、(一社)不動産協会
- 保証協会
- (公社)不動産保証協会
- 公正取引協議会
- 未加盟
※連合隊は物件情報の精度向上に努めています:「物件情報に誤りがある」「成約済みである」などお気付きの点がございましたらこちらよりご連絡ください。
写真枚数:5枚
札幌市内の小規模賃貸事務所(10万円以下)を数多くご紹介しております。
地下鉄から徒歩10分以内で通いやすくてお洒落な賃貸事務所を数多くご用意しておりますので、ぜひお問合せ下さいませ。 ★札幌小規模賃貸事務所: https://jimusyokensaku.ichi-rin.jp