佐藤一丁目貸店舗
ここに注目!約25.7坪の貸テナントになります。駐車場は6台分無料
| 賃料・費用 |
29万7,000円
(+管理費等 -円)
坪単価:約1.2万円/坪
敷81万円礼29万7,000円(1ヶ月)仲29万7,000円
|
|---|---|
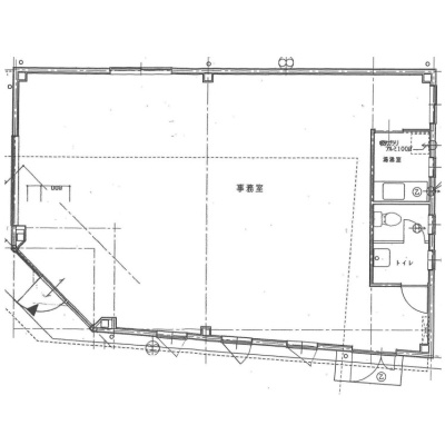
| 専有面積 | 85.01m² (25.71坪) |
| 住所 | 静岡県浜松市中央区佐藤24-12 |
| 交通 | 浜松駅(徒歩28分)|遠鉄バス 「駒形橋」停(徒歩1分)道順を見る |
| 階/階建 | 1階建 |
| 築年月 | 築24年(2001年12月) |
| 駐車場 |
あり 駐車可能台数:6台
駐車場6台無料 |
空室確認、見学、詳細を知りたい方はこちら!
お電話の際は「連合隊の物件」とお伝えください。
新着 情報掲載期限:あと29日(更新日 2025/12/13)
- 物件写真・概要
- 周辺地図
-
空室確認、見学、詳細を知りたい方はこちら!
おすすめポイント
- 即入居可
- 駐車2台以上可
- 出店するなら…この業種がおすすめ!
- 飲食全般(重飲食含む)

- 喫茶・カフェ(軽飲食)

- バー・クラブ・スナック

- 小売・物販

- 美容・健康・介護

- 医療

- 教育・スクール

- 事務所

- アミューズメント

※出店不可の業種:飲食全般
交通色がついているアイコンをクリックすると、本物件までの道順を見ることができます。
- 浜松駅東海道新幹線、JR東海道本線徒歩28分(約2.2km)
- 遠鉄バス 「駒形橋」停徒歩1分
物件概要
建物の階建 地上1階建 総戸数 構造 鉄骨造 間取り 契約期間 3年間 権利金 住宅保険 出店推奨業種 美容・健康・介護、教育・スクール、事務所 出店不可業種 飲食全般 引渡し 即時 管理人 取引態様 仲介 物件No 設備・特徴 備考 要保証委託契約 主な周辺施設色がついているアイコンをクリックすると、本物件までの道順を見ることができます。
-
※連合隊は物件情報の精度向上に努めています:「物件情報に誤りがある」「成約済みである」などお気付きの点がございましたらこちらよりご連絡ください。
写真枚数:9枚
浜松の不動産探しは株式会社AFCスマイルプラスの、Smife(スマイフ)にお任せください!!
居住用物件の他にも、事業用物件の取扱実績が豊富のため、 お客さまにテナントのご紹介やそれ以外の選択肢も含め、幅広い提案が可能でございます。 お気軽にお問い合わせください。