中田島町貸倉庫
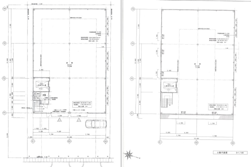
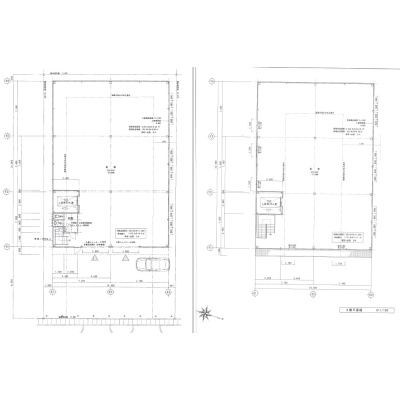
ここに注目!2階建て貸倉庫(1階:338.80㎡ 2階:338.80㎡)駐車場は約6台程可能です!建物内にトイレ御座います!
| 賃料・費用 |
55万円
(+管理費等 -円)
坪単価:約2,684円/坪
敷150万円礼55万円(1ヶ月)仲55万円
|
|---|---|
| 専有面積 | 677.6m² (204.97坪) |
| 住所 | 静岡県浜松市中央区中田島町612 |
| 交通 | 遠鉄バス 「新田」停(徒歩4分) |
| 階/階建 | 2階建 |
| 築年月 | 築23年(2003年3月) |
| 駐車場 |
あり 駐車可能台数:6台
6台可能 |
空室確認、見学、詳細を知りたい方はこちら!
お電話の際は「連合隊の物件」とお伝えください。
情報掲載期限:あと24日(更新日 2026/2/26)
- 物件写真・概要
- 周辺地図
-
空室確認、見学、詳細を知りたい方はこちら!
おすすめポイント
- 駐車2台以上可
- 幹線道路沿い
交通
- 遠鉄バス 「新田」停徒歩4分
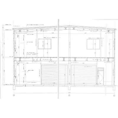
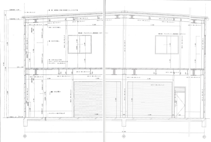
物件概要
所在階/建物の階建 地上2階建 主要採光面 構造 鉄骨造 間取り 契約期間 3年間 権利金 住宅保険 出店推奨業種 出店不可業種 土地面積 568m² (171.82坪)(公簿)接道状況 一方 - 東側幅20.00mの公道に16.50m接道 位置指定:無
用途地域 - 無指定(建ぺい率:60% / 容積率:200%)
引渡し 相談 管理人 取引態様 仲介 物件No 設備・特徴 - 幹線道路沿い
- 照明器具付
備考 ・現況有姿渡し ・本物件の使用用途は倉庫に限ります。 ・要保証委託契約 初回100% 1年更新:10% 月々引落手数料有 ・エレベーターは設備外になります。 ・消防点検費用は借主様負担 ・1階平米数:338.80㎡ 2階平米数:338.80㎡ 主な周辺施設色がついているアイコンをクリックすると、本物件までの道順を見ることができます。
-
※連合隊は物件情報の精度向上に努めています:「物件情報に誤りがある」「成約済みである」などお気付きの点がございましたらこちらよりご連絡ください。
写真枚数:18枚
2階
2階
2階
2階
1階
1階
1階
1階
1階
1階
1階
1階
浜松の不動産探しは株式会社AFCスマイルプラスの、Smife(スマイフ)にお任せください!!
居住用物件の他にも、事業用物件の取扱実績が豊富のため、 お客さまにテナントのご紹介やそれ以外の選択肢も含め、幅広い提案が可能でございます。 お気軽にお問い合わせください。