【大人見パリタ 2FテナントD】
ここに注目!ひとみヶ丘団地内にあるテナント物件!室内は広々20坪のスペース! 渥美不動産ではお客様へ分かりやすい情報をお届けする為、多くの写真や動画撮影 現地での正確な図面作成を心がけています 物件情報で分からない事があれば お気軽にお問い合わせフォームよりお問い合わせ下さい♪ テナント仲介実績多数!HPより契約されたお店の情報もご覧になれます!
| 賃料・費用 |
8万円
(+管理費等 なし)
坪単価:約3,783円/坪
敷16万円(2ヶ月)礼なし仲8万円
保証金:なし
|
|---|---|
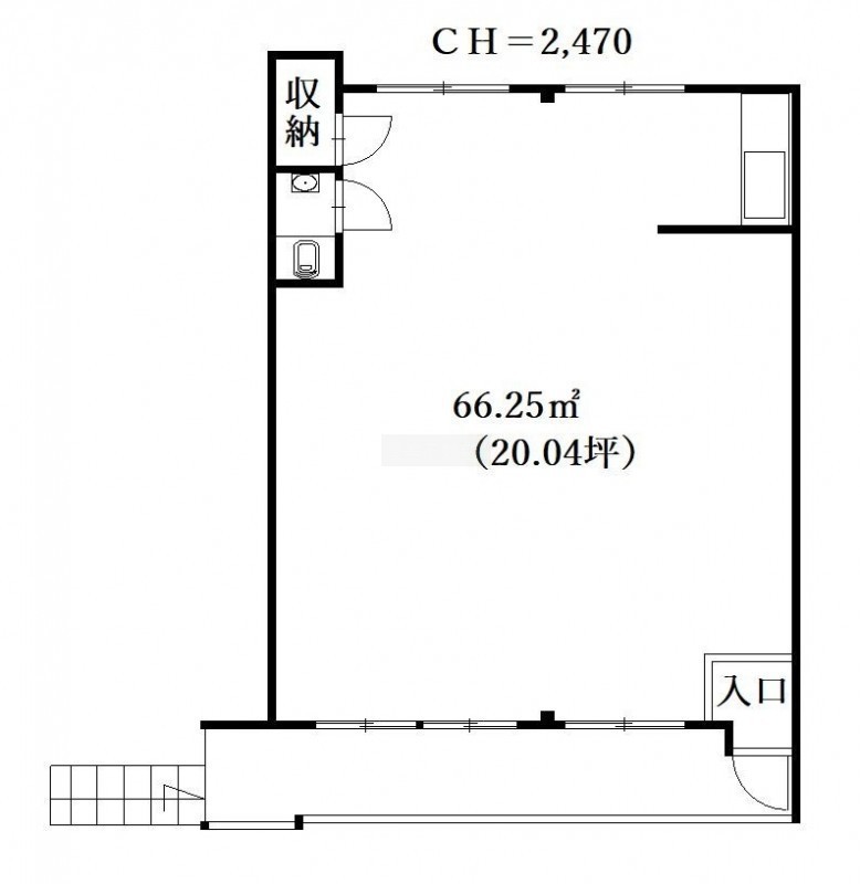
| 専有面積 | 69.92m² (21.15坪) |
| 住所 | 静岡県浜松市中央区大人見町12-324 |
| 交通 | 遠鉄バス「ひとみが丘東」停 (徒歩3分) |
| 階/階建 | 2階 / 2階建 |
| 築年月 | 築40年(1985年4月) |
| 駐車場 |
あり (無料) 駐車可能台数:1台
西側奥 |
【WEB面談可】
空室確認、見学、詳細を知りたい方はこちら!
お電話の際は「連合隊の物件」とお伝えください。
情報掲載期限:あと28日(更新日 2026/2/10)
- 物件写真・概要
- 周辺地図
-
【WEB面談可】
空室確認、見学、詳細を知りたい方はこちら!お電話の際は「連合隊の物件」とお伝えください。
053-488-4586情報掲載期限:あと28日(更新日 2026/2/10)
おすすめポイント
- 駐車場あり
- 出店するなら…この業種がおすすめ!
- 飲食全般(重飲食含む)

- 喫茶・カフェ(軽飲食)

- バー・クラブ・スナック

- 小売・物販

- 美容・健康・介護

- 医療

- 教育・スクール

- 事務所

- アミューズメント

※出店不可の業種:飲食全般、重飲食(軽飲食は相談可)
交通
- 遠鉄バス「ひとみが丘東」停 徒歩3分
物件概要
所在階/建物の階建 2階(D) / 地上2階建 主要採光面 南 構造 鉄骨造 間取り 契約期間 更新料/更新手数料 1万1,000円 権利金 なし 住宅保険 出店推奨業種 教育・スクール、事務所、その他 出店不可業種 飲食全般、重飲食(軽飲食は相談可) 引渡し 相談 管理人 無 取引態様 仲介 物件No 設備・特徴 - 照明器具付
備考 ■保証会社への加入が必要 主な周辺施設色がついているアイコンをクリックすると、本物件までの道順を見ることができます。
-
ホームページはこちら
静岡県知事(2) 第014230号
渥美不動産(株) 【WEB面談可】- 加入団体
- (公社)全日本不動産協会
- 保証協会
- (公社)不動産保証協会
- 公正取引協議会
- 東海不動産公正取引協議会
※連合隊は物件情報の精度向上に努めています:「物件情報に誤りがある」「成約済みである」などお気付きの点がございましたらこちらよりご連絡ください。
写真枚数:29枚
保育園まで徒歩2分
公会堂まで徒歩3分
バス停まで徒歩3分
【お問い合わせの物件のご案内はお電話・メールにて事前のご予約から優先させて頂いています】
遠鉄【八幡駅】より徒歩6分!事業用の貸テナント取り扱いのお店です!商圏調査のできるサービスもご用意してます♪ 所有物件を貸したい方 借り手がつかなくて困っている物件の募集もお気軽にお問い合わせくださ