【中央砂山ビル】
ここに注目!浜松駅徒歩7分の貸事務所!駐車場は縦列2台無料!区画整理されたキレイな街並みにあるオフィススペースです! 渥美不動産ではお客様へ分かりやすい情報をお届けする為 多くの写真や動画撮影 現地での正確な図面作成を心がけています 物件情報で分からない事があれば お気軽にお問い合わせフォームよりお問い合わせ下さい♪ 気になる物件周りに競合店がいくつあるか、居住者の消費支出や近年の出退店状況が分かる 商圏情報サービスもご利用になれます♪
| 賃料・費用 |
16万5,000円
(+管理費等 2,200円)
坪単価:約1.2万円/坪
敷49万5,000円(3ヶ月)礼16万5,000円(1ヶ月)仲16万5,000円
保証金:なし
|
|---|---|
| 専有面積 | 44.46m² (13.44坪) |
| 住所 | 静岡県浜松市中央区砂山町215-1 |
| 交通 | 浜松駅(徒歩7分) |
| 階/階建 | 3階 / 3階建 |
| 築年月 | 築11年(2014年8月) |
| 駐車場 |
あり (無料) 駐車可能台数:1台
(小型車なら縦列2台可) |
【WEB面談可】
空室確認、見学、詳細を知りたい方はこちら!
お電話の際は「連合隊の物件」とお伝えください。
情報掲載期限:あと28日(更新日 2025/12/23)
- 物件写真・概要
- 周辺地図
-
【WEB面談可】
空室確認、見学、詳細を知りたい方はこちら!おすすめポイント
- 駅前立地
- 駐車場あり
- エアコン付
交通色がついているアイコンをクリックすると、本物件までの道順を見ることができます。
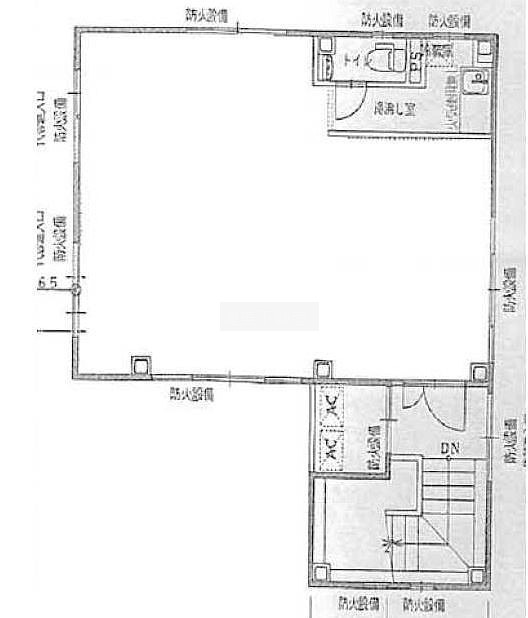
物件概要
所在階/建物の階建 3階(3) / 地上3階建 主要採光面 南 構造 鉄骨造 間取り 契約期間 権利金 なし 住宅保険 用途地域 - 近隣商業地域
引渡し 2025年1月下旬 管理人 無 取引態様 仲介 物件No 設備・特徴 - 駅前立地
- エアコン付
- 照明器具付
備考 ■写真は現在の入居者が入る前の状態となります ■保証会社への加入が必要です(初回保証料賃料総額の100%) 主な周辺施設色がついているアイコンをクリックすると、本物件までの道順を見ることができます。
-

この物件の担当者 渥美智也(アツミトモヤ)
事務所・店舗等のテナントを取り扱っております!お問い合わせの際は営業される事業の内容を教えて頂けるとスムーズにご案内が可能です!
ホームページはこちら静岡県知事(2) 第014230号
渥美不動産(株) 【WEB面談可】- 加入団体
- (公社)全日本不動産協会
- 保証協会
- (公社)不動産保証協会
- 公正取引協議会
- 東海不動産公正取引協議会
※連合隊は物件情報の精度向上に努めています:「物件情報に誤りがある」「成約済みである」などお気付きの点がございましたらこちらよりご連絡ください。
写真枚数:28枚
【お問い合わせの物件のご案内はお電話・メールにて事前のご予約から優先させて頂いています】
遠鉄【八幡駅】より徒歩6分!事業用の貸テナント取り扱いのお店です!商圏調査のできるサービスもご用意してます♪ 所有物件を貸したい方 借り手がつかなくて困っている物件の募集もお気軽にお問い合わせくださ