【出雲殿互助会鍛治町ビル 5F】
ここに注目!鍛冶町通り沿い!スクランブル交差点沿いで視認性良好♪銀行等が入るオフィスビルワンフロアテナント♪共用の男女別トイレあります! 渥美不動産ではお客様へ分かりやすい情報をお届けする為 多くの写真や動画撮影 現地での正確な図面作成を心がけています 物件情報で分からない事があれば お気軽にお問い合わせフォームよりお問い合わせ下さい♪
| 賃料・費用 |
171万2,392円
(+管理費等 31万1,344円)
坪単価:約1.2万円/坪
敷2,054万8,704円(12ヶ月)礼なし仲171万2,392円
保証金:なし
|
|---|---|
| 専有面積 | 471.13m² (142.51坪) |
| 住所 | 静岡県浜松市中央区鍛冶町332-1 |
| 交通 | 浜松駅(徒歩7分)|新浜松駅(徒歩5分)道順を見る |
| 階/階建 | 5階 / 8階建 |
| 築年月 | 築33年(1993年1月) |
| 駐車場 |
あり (3万3,000円/台) 駐車可能台数:1台
機械式駐車場 |
【WEB面談可】
空室確認、見学、詳細を知りたい方はこちら!
お電話の際は「連合隊の物件」とお伝えください。
情報掲載期限:あと24日(更新日 2026/4/17)
- 物件写真・概要
- 周辺地図
-
【WEB面談可】
空室確認、見学、詳細を知りたい方はこちら!おすすめポイント
- 駅徒歩5分以内
- 複数路線利用可
- 駅前立地
- 駐車場あり
- 男女別トイレ
- OAフロア
交通色がついているアイコンをクリックすると、本物件までの道順を見ることができます。
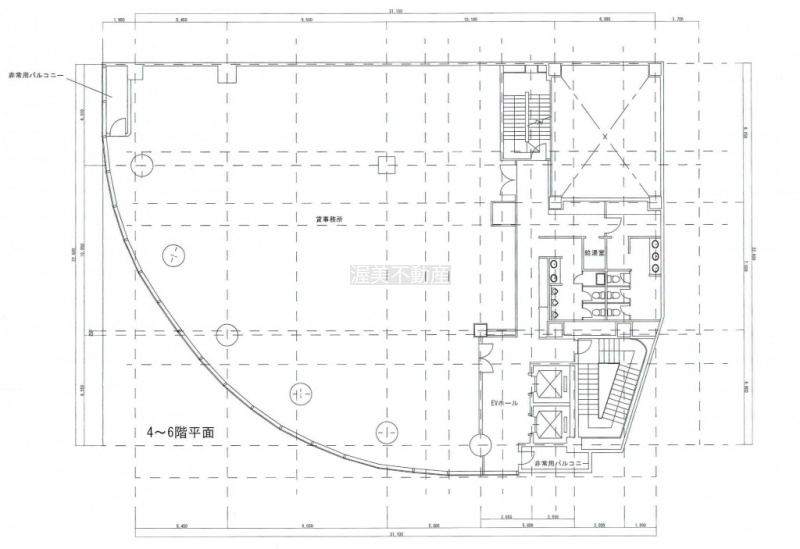
物件概要
所在階/建物の階建 5階 / 地上8階建 主要採光面 構造 鉄骨鉄筋コンクリート(SRC)造 間取り 契約期間 3年間 権利金 住宅保険 用途地域 - 商業地域
引渡し 相談 管理人 日勤 取引態様 仲介 物件No 設備・特徴 - 複数路線利用可
- 駅前立地
- 幹線道路沿い
- エレベーター
- 給排水設備
- ビルトインエアコン
- 男女別トイレ(共用部)
- 男女別トイレ
- 個別空調
- OAフロア
備考 ■保証会社への加入が必要です(初回保証料賃料総額の100%)全保連(上場企業様は不要) ■個別空調・24H警備・OAフロア 主な周辺施設色がついているアイコンをクリックすると、本物件までの道順を見ることができます。
-
ホームページはこちら
静岡県知事(2) 第014230号
渥美不動産(株) 【WEB面談可】- 加入団体
- (公社)全日本不動産協会
- 保証協会
- (公社)不動産保証協会
- 公正取引協議会
- 東海不動産公正取引協議会
※連合隊は物件情報の精度向上に努めています:「物件情報に誤りがある」「成約済みである」などお気付きの点がございましたらこちらよりご連絡ください。
写真枚数:14枚
共用給湯室
共用男女別トイレ
浜松郵便局まで徒歩1分
浜松駅まで徒歩5分
【お問い合わせの物件のご案内はお電話・メールにて事前のご予約から優先させて頂いています】
遠鉄【八幡駅】より徒歩6分!事業用の貸テナント取り扱いのお店です!商圏調査のできるサービスもご用意してます♪ 所有物件を貸したい方 借り手がつかなくて困っている物件の募集もお気軽にお問い合わせくださ