【カルディアビル】
ここに注目!遠州鉄道鉄道線「第一通り」駅まで徒歩3分と、駅近の好立地が魅力の一棟貸しビル☆ 専有面積はゆとりの188.66㎡。小売・物販店舗、教育・スクール、事務所など、多岐にわたる事業展開に対応できる広さです☆渥美不動産ではお客様へ分かりやすい情報をお届けする為 多くの写真や動画撮影 現地での正確な図面作成を心がけています 物件情報で分からない事があれば お気軽にお問い合わせフォームよりお問い合わせ下さい♪
| 賃料・費用 |
48万4,000円
(+管理費等 なし)
坪単価:約8,483円/坪
敷242万円(5ヶ月)礼48万4,000円(1ヶ月)仲48万4,000円
|
|---|---|
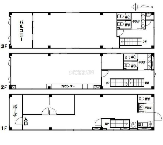
| 専有面積 | 188.66m² (57.06坪) |
| 住所 | 静岡県浜松市中央区板屋町517 |
| 交通 | 第一通り駅(徒歩3分)道順を見る |
| 階/階建 | 3階建 |
| 築年月 | 築25年(2000年8月) |
| 駐車場 |
なし
|
【WEB面談可】
空室確認、見学、詳細を知りたい方はこちら!
お電話の際は「連合隊の物件」とお伝えください。
情報掲載期限:あと30日(更新日 2025/12/23)
- 物件写真・概要
- 周辺地図
-
【WEB面談可】
空室確認、見学、詳細を知りたい方はこちら!おすすめポイント
- 駅徒歩3分以内
- 幹線道路沿い
- 出店するなら…この業種がおすすめ!
- 飲食全般(重飲食含む)

- 喫茶・カフェ(軽飲食)

- バー・クラブ・スナック

- 小売・物販

- 美容・健康・介護

- 医療

- 教育・スクール

- 事務所

- アミューズメント

交通色がついているアイコンをクリックすると、本物件までの道順を見ることができます。
物件概要
建物の階建 地上3階建 総戸数 構造 鉄骨造 間取り 契約期間 権利金 住宅保険 出店推奨業種 小売・物販、教育・スクール、事務所 出店不可業種 引渡し 2026年4月初旬 管理人 無 取引態様 仲介 物件No 設備・特徴 - 幹線道路沿い
- ビルトインエアコン
- 給排水設備
備考 ■保証会社への加入が必要です(初回保証料賃料総額の100%) 主な周辺施設色がついているアイコンをクリックすると、本物件までの道順を見ることができます。
-
ホームページはこちら
静岡県知事(2) 第014230号
渥美不動産(株) 【WEB面談可】- 加入団体
- (公社)全日本不動産協会
- 保証協会
- (公社)不動産保証協会
- 公正取引協議会
- 東海不動産公正取引協議会
※連合隊は物件情報の精度向上に努めています:「物件情報に誤りがある」「成約済みである」などお気付きの点がございましたらこちらよりご連絡ください。
写真枚数:9枚
【お問い合わせの物件のご案内はお電話・メールにて事前のご予約から優先させて頂いています】
遠鉄【八幡駅】より徒歩6分!事業用の貸テナント取り扱いのお店です!商圏調査のできるサービスもご用意してます♪ 所有物件を貸したい方 借り手がつかなくて困っている物件の募集もお気軽にお問い合わせくださ