【HI bldg.TAMACHI 1F】
ここに注目!田町に2025年9月完成の新築ビル!目を引く1階ワンフロアのテナントです♪飲食店可能☆渥美不動産ではお客様へ分かりやすい情報をお届けする為 多くの写真や動画撮影 現地での正確な図面作成を心がけています 物件情報で分からない事があれば お気軽にお問い合わせフォームよりお問い合わせ下さい♪
☆浜松で店舗・テナントを出したい方へ:渥美不動産の提供サービス☆
| 賃料・費用 |
61万6,000円
(+管理費等 2万2,000円)
坪単価:約2.1万円/坪
敷150万円礼61万6,000円(1ヶ月)仲61万6,000円
|
|---|---|
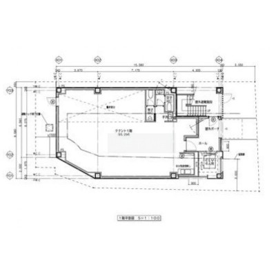
| 専有面積 | 95.2m² (28.79坪) |
| 住所 | 静岡県浜松市中央区田町323-7 |
| 交通 | 第一通り駅(徒歩4分)道順を見る |
| 階/階建 | 1階 / 5階建 |
| 築年月 | 新築(2025年9月) |
| 駐車場 |
なし
|
【WEB面談可】
空室確認、見学、詳細を知りたい方はこちら!
お電話の際は「連合隊の物件」とお伝えください。
情報掲載期限:あと17日(更新日 2026/3/17)
- 物件写真・概要
- 周辺地図
-
【WEB面談可】
空室確認、見学、詳細を知りたい方はこちら!お電話の際は「連合隊の物件」とお伝えください。
053-488-4586情報掲載期限:あと17日(更新日 2026/3/17)
おすすめポイント
- 駅徒歩5分以内
- 出店するなら…この業種がおすすめ!
- 飲食全般(重飲食含む)

- 喫茶・カフェ(軽飲食)

- バー・クラブ・スナック

- 小売・物販

- 美容・健康・介護

- 医療

- 教育・スクール

- 事務所

- アミューズメント

交通色がついているアイコンをクリックすると、本物件までの道順を見ることができます。
物件概要
所在階/建物の階建 1階(1F) / 地上5階建 主要採光面 構造 鉄骨造 間取り 契約期間 権利金 住宅保険 出店推奨業種 飲食全般(重飲食含む)、喫茶・カフェ(軽飲食)、バー・クラブ・スナック 出店不可業種 用途地域 - 商業地域
その他費用 毎月の費用 - 自治会費:1,000円
- 警備料:1万3,200円
その他 - ゴミ回収費用:1万3,200円
- 24時間サポート料:2,200円
引渡し 2025年10月初旬 管理人 無 取引態様 仲介 物件No 設備・特徴 - エレベーター
- 給排水設備
- エアコン付
- その他インターネット
備考 ■保証会社への加入が必要です(初回保証料賃料総額の100%) ■ 有楽街仲通り都市景観形成地区 ■開業支援金150万円※契約開始から5年以内の解約の場合は貸主に全額返金 主な周辺施設色がついているアイコンをクリックすると、本物件までの道順を見ることができます。
-
ホームページはこちら
静岡県知事(2) 第014230号
渥美不動産(株) 【WEB面談可】- 加入団体
- (公社)全日本不動産協会
- 保証協会
- (公社)不動産保証協会
- 公正取引協議会
- 東海不動産公正取引協議会
※連合隊は物件情報の精度向上に努めています:「物件情報に誤りがある」「成約済みである」などお気付きの点がございましたらこちらよりご連絡ください。
写真枚数:30枚
【お問い合わせの物件のご案内はお電話・メールにて事前のご予約から優先させて頂いています】
遠鉄【八幡駅】より徒歩6分!事業用の貸テナント取り扱いのお店です!商圏調査のできるサービスもご用意してます♪ 所有物件を貸したい方 借り手がつかなくて困っている物件の募集もお気軽にお問い合わせくださ