【WAVE BLDG.406】
ここに注目!有楽街の中心にある商業ビル!内装、トイレも新品で設備一式揃っているのですぐお店を始められます!渥美不動産ではお客様へ分かりやすい情報をお届けする為、 多くの写真や動画撮影 現地での正確な図面作成を心がけています 物件情報で分からない事があれば お気軽にお問い合わせフォームよりお問い合わせ下さい♪ 気になる物件周りに競合店がいくつあるか、居住者の消費支出や近年の出退店状況が分かる 商圏情報サービスもご利用になれます♪
| 賃料・費用 |
27万5,000円
(+管理費等 なし)
坪単価:約2.5万円/坪
敷165万円(6ヶ月)礼なし仲27万5,000円
保証金:なし
|
|---|---|
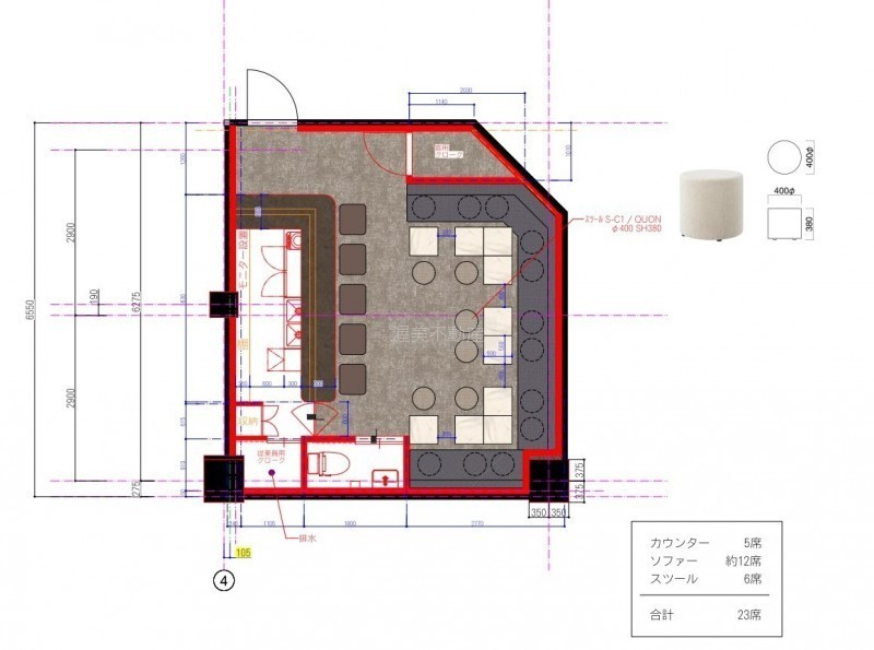
| 専有面積 | 36.08m² (10.91坪) |
| 住所 | 静岡県浜松市中央区肴町322-20 |
| 交通 | 第一通り駅(徒歩4分)|浜松駅(徒歩8分)道順を見る |
| 階/階建 | 4階 / 7階建(地下1階) |
| 築年月 | 築38年(1987年1月) |
| 駐車場 |
なし
|
【WEB面談可】
空室確認、見学、詳細を知りたい方はこちら!
お電話の際は「連合隊の物件」とお伝えください。
情報掲載期限:あと25日(更新日 2025/12/4)
- 物件写真・概要
- 周辺地図
-
【WEB面談可】
空室確認、見学、詳細を知りたい方はこちら!おすすめポイント
- 駅徒歩5分以内
- 複数路線利用可
- 駅前立地
- スケルトン
- 出店するなら…この業種がおすすめ!
- 飲食全般(重飲食含む)

- 喫茶・カフェ(軽飲食)

- バー・クラブ・スナック

- 小売・物販

- 美容・健康・介護

- 医療

- 教育・スクール

- 事務所

- アミューズメント

交通色がついているアイコンをクリックすると、本物件までの道順を見ることができます。
物件概要
所在階/建物の階建 4階(406) / 地上7階 地下1階建 主要採光面 構造 鉄骨鉄筋コンクリート(SRC)造 間取り 契約期間 権利金 なし 住宅保険 出店推奨業種 バー・クラブ・スナック、美容・健康・介護、アミューズメント 出店不可業種 引渡し 相談 管理人 取引態様 仲介 物件No 設備・特徴 - 複数路線利用可
- 駅前立地
- エレベーター
- 給排水設備
- スケルトン
備考 ■保証会社への加入が必要です ■水光熱費:使用量に応じ按分計算にて請求 ■ゴミ処理代:専有面積×設定単価(所定の場所に所定の方法にて捨てていただきます) ■フロア案内板:月額使用料無し・設置費借主負担 主な周辺施設色がついているアイコンをクリックすると、本物件までの道順を見ることができます。
-
ホームページはこちら
静岡県知事(2) 第014230号
渥美不動産(株) 【WEB面談可】- 加入団体
- (公社)全日本不動産協会
- 保証協会
- (公社)不動産保証協会
- 公正取引協議会
- 東海不動産公正取引協議会
※連合隊は物件情報の精度向上に努めています:「物件情報に誤りがある」「成約済みである」などお気付きの点がございましたらこちらよりご連絡ください。
写真枚数:30枚
ザザシティ浜松まで徒歩4分
第一通り駅まで徒歩4分
浜松駅まで徒歩8分
みずほ銀行まで徒歩3分
【お問い合わせの物件のご案内はお電話・メールにて事前のご予約から優先させて頂いています】
遠鉄【八幡駅】より徒歩6分!事業用の貸テナント取り扱いのお店です!商圏調査のできるサービスもご用意してます♪ 所有物件を貸したい方 借り手がつかなくて困っている物件の募集もお気軽にお問い合わせくださ