【S.G.C BLD 1F-2F】
ここに注目!ザザシティ至近♪交通量の多い257号線沿い、1Fと2Fメゾネットタイプのテナントです♪前面ガラス張りで視認性良好!周辺にコインパーキングも多数あります! 渥美不動産ではお客様へ分かりやすい情報をお届けする為 多くの写真や動画撮影 現地での正確な図面作成を心がけています 物件情報で分からない事があれば お気軽にお問い合わせフォームよりお問い合わせ下さい♪
| 賃料・費用 |
44万円
(+管理費等 なし)
坪単価:約8,877円/坪
敷132万円(3ヶ月)礼44万円(1ヶ月)仲44万円
|
|---|---|
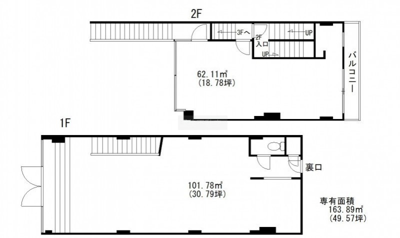
| 専有面積 | 163.89m² (49.57坪) |
| 住所 | 静岡県浜松市中央区連尺町313-30 |
| 交通 | 浜松駅(徒歩11分)|第一通り駅(徒歩6分)道順を見る |
| 階/階建 | 路面 / 6階建 |
| 築年月 | 築47年(1978年10月) |
| 駐車場 |
なし
|
【WEB面談可】
空室確認、見学、詳細を知りたい方はこちら!
お電話の際は「連合隊の物件」とお伝えください。
情報掲載期限:あと29日(更新日 2025/12/23)
- 物件写真・概要
- 周辺地図
-
【WEB面談可】
空室確認、見学、詳細を知りたい方はこちら!お電話の際は「連合隊の物件」とお伝えください。
053-488-4586情報掲載期限:あと29日(更新日 2025/12/23)
おすすめポイント
- 路面店
- 複数路線利用可
- 駅前立地
- 幹線道路沿い
- スケルトン
- 出店するなら…この業種がおすすめ!
- 飲食全般(重飲食含む)

- 喫茶・カフェ(軽飲食)

- バー・クラブ・スナック

- 小売・物販

- 美容・健康・介護

- 医療

- 教育・スクール

- 事務所

- アミューズメント

※出店不可の業種:飲食全般
交通色がついているアイコンをクリックすると、本物件までの道順を見ることができます。
物件概要
所在階/建物の階建 1階 / 地上6階建 主要採光面 構造 鉄筋コンクリート(RC)造 間取り バルコニー あり契約期間 権利金 住宅保険 出店推奨業種 小売・物販、美容・健康・介護、事務所 出店不可業種 飲食全般 引渡し 2025年12月初旬 管理人 取引態様 仲介 物件No 設備・特徴 - 複数路線利用可
- 駅前立地
- 幹線道路沿い
- 給排水設備
- スケルトン
- 路面店
- 前面ガラス張り
備考 ■保証会社への加入が必要です(初回保証料賃料総額の100%) ■別途町費、入町金がかかります 主な周辺施設色がついているアイコンをクリックすると、本物件までの道順を見ることができます。
-
ホームページはこちら
静岡県知事(2) 第014230号
渥美不動産(株) 【WEB面談可】- 加入団体
- (公社)全日本不動産協会
- 保証協会
- (公社)不動産保証協会
- 公正取引協議会
- 東海不動産公正取引協議会
※連合隊は物件情報の精度向上に努めています:「物件情報に誤りがある」「成約済みである」などお気付きの点がございましたらこちらよりご連絡ください。
写真枚数:30枚
浜松駅まで徒歩11分
浜松磐田信用金庫まで徒歩5分
連尺郵便局まで徒歩5分
ザザシティ浜松まで徒歩4分
【お問い合わせの物件のご案内はお電話・メールにて事前のご予約から優先させて頂いています】
遠鉄【八幡駅】より徒歩6分!事業用の貸テナント取り扱いのお店です!商圏調査のできるサービスもご用意してます♪ 所有物件を貸したい方 借り手がつかなくて困っている物件の募集もお気軽にお問い合わせくださ