【二美ビル 三島町 3F2号室】
ここに注目!中田島街道沿い、三島町の約8坪テナントです♪専有部分にトイレあり♪共用の来客駐車場があります! 渥美不動産ではお客様へ分かりやすい情報をお届けする為、 多くの写真や動画撮影 現地での正確な図面作成を心がけています 物件情報で分からない事があれば お気軽にお問い合わせフォームよりお問い合わせ下さい♪
| 賃料・費用 |
5万5,000円
(+管理費等 5,500円)
坪単価:約6,556円/坪
敷11万円(2ヶ月)礼6万500円仲6万500円
保証金:なし
|
|---|---|
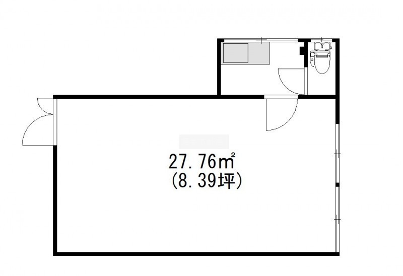
| 専有面積 | 27.76m² (8.39坪) |
| 住所 | 静岡県浜松市中央区三島町102-1 |
| 交通 | 浜松駅(徒歩22分)|遠鉄バス「浜松神社西」停 (徒歩2分) |
| 階/階建 | 3階 / 3階建 |
| 築年月 | 築41年(1984年10月) |
| 駐車場 |
あり (5,500円/台)
|
【WEB面談可】
空室確認、見学、詳細を知りたい方はこちら!
お電話の際は「連合隊の物件」とお伝えください。
情報掲載期限:あと27日(更新日 2025/12/23)
- 物件写真・概要
- 周辺地図
-
【WEB面談可】
空室確認、見学、詳細を知りたい方はこちら!お電話の際は「連合隊の物件」とお伝えください。
053-488-4586情報掲載期限:あと27日(更新日 2025/12/23)
おすすめポイント
- 幹線道路沿い
- 駐車場あり
- 出店するなら…この業種がおすすめ!
- 飲食全般(重飲食含む)

- 喫茶・カフェ(軽飲食)

- バー・クラブ・スナック

- 小売・物販

- 美容・健康・介護

- 医療

- 教育・スクール

- 事務所

- アミューズメント

※出店不可の業種:飲食全般
交通色がついているアイコンをクリックすると、本物件までの道順を見ることができます。
- 浜松駅東海道新幹線、JR東海道本線徒歩22分(約1.8km)
- 遠鉄バス「浜松神社西」停 徒歩2分
物件概要
所在階/建物の階建 3階(2) / 地上3階建 主要採光面 構造 鉄骨造 間取り 契約期間 3年間 権利金 住宅保険 出店推奨業種 教育・スクール、事務所 出店不可業種 飲食全般 その他費用 一時金 - 鍵交換料:1万1,000円
引渡し 相談 管理人 取引態様 仲介 物件No 設備・特徴 - 幹線道路沿い
- 給排水設備
備考 ■保証会社への加入が必要です ■入居時キーシリンダー交換費11,000円 主な周辺施設色がついているアイコンをクリックすると、本物件までの道順を見ることができます。
-
ホームページはこちら
静岡県知事(2) 第014230号
渥美不動産(株) 【WEB面談可】- 加入団体
- (公社)全日本不動産協会
- 保証協会
- (公社)不動産保証協会
- 公正取引協議会
- 東海不動産公正取引協議会
※連合隊は物件情報の精度向上に努めています:「物件情報に誤りがある」「成約済みである」などお気付きの点がございましたらこちらよりご連絡ください。
写真枚数:30枚
浜松磐田信用金庫まで徒歩2分
リベロ三島まで徒歩9分
エネオスまで徒歩3分
楊子公園まで徒歩6分
【お問い合わせの物件のご案内はお電話・メールにて事前のご予約から優先させて頂いています】
遠鉄【八幡駅】より徒歩6分!事業用の貸テナント取り扱いのお店です!商圏調査のできるサービスもご用意してます♪ 所有物件を貸したい方 借り手がつかなくて困っている物件の募集もお気軽にお問い合わせくださ