【シャイニースクエア浜松601】
ここに注目!2023年春リニューアル!1Fラウンジスペース新設済み♪6F共用部も綺麗に改修されています♪13坪ほどのスペースに大きな窓があり明るい室内! 渥美不動産ではお客様へ分かりやすい情報をお届けする為、 多くの写真や動画撮影 現地での正確な図面作成を心がけています 物件情報で分からない事があれば お気軽にお問い合わせフォームよりお問い合わせ下さい♪ 気になる物件周りに競合店がいくつあるか、居住者の消費支出や近年の出退店状況が分かる 商圏情報サービスもご利用になれます♪
| 賃料・費用 |
12万9,030円
(+管理費等 -円)
坪単価:約9,350円/坪
敷77万4,180円(6ヶ月)礼なし仲12万9,030円
保証金:なし
|
|---|---|
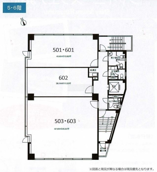
| 専有面積 | 45.65m² (13.8坪) |
| 住所 | 静岡県浜松市中央区元浜町34-15 |
| 交通 | 浜松駅(徒歩16分)|遠州病院駅(徒歩5分)道順を見る |
| 階/階建 | 6階 / 9階建 |
| 築年月 | 築41年(1984年12月) |
| 駐車場 |
なし
|
【WEB面談可】
空室確認、見学、詳細を知りたい方はこちら!
お電話の際は「連合隊の物件」とお伝えください。
情報掲載期限:あと25日(更新日 2026/4/1)
- 物件写真・概要
- 周辺地図
-
【WEB面談可】
空室確認、見学、詳細を知りたい方はこちら!お電話の際は「連合隊の物件」とお伝えください。
053-488-4586情報掲載期限:あと25日(更新日 2026/4/1)
おすすめポイント
- 駅徒歩5分以内
- 出店するなら…この業種がおすすめ!
- 飲食全般(重飲食含む)

- 喫茶・カフェ(軽飲食)

- バー・クラブ・スナック

- 小売・物販

- 美容・健康・介護

- 医療

- 教育・スクール

- 事務所

- アミューズメント

交通色がついているアイコンをクリックすると、本物件までの道順を見ることができます。
物件概要
所在階/建物の階建 6階(601) / 地上9階建 主要採光面 北 構造 鉄骨鉄筋コンクリート(SRC)造 間取り 契約期間 2年間 更新料/更新手数料 なし 権利金 なし 住宅保険 出店推奨業種 教育・スクール、事務所 出店不可業種 引渡し 2026年8月初旬 管理人 無 取引態様 仲介 物件No 設備・特徴 - エレベーター
- 男女別トイレ(共用部)
備考 ■保証会社への加入が必要です ■電気、水道:借主実費負担 ■ごみ処理代:専有面積×設定単価(@200円/坪:税別)所定の場所に所定の方法にて捨てていただきます ■看板料:袖看板:月額20,000(税別)・設置費借主負担*任意 フロア案内板:月額利用料なし・設置費借主負担 ■敷地内平置駐車場:月額15,000円(税別)・敷金1か月・仲介手数料1か月 主な周辺施設色がついているアイコンをクリックすると、本物件までの道順を見ることができます。
-
ホームページはこちら
静岡県知事(2) 第014230号
渥美不動産(株) 【WEB面談可】- 加入団体
- (公社)全日本不動産協会
- 保証協会
- (公社)不動産保証協会
- 公正取引協議会
- 東海不動産公正取引協議会
※連合隊は物件情報の精度向上に努めています:「物件情報に誤りがある」「成約済みである」などお気付きの点がございましたらこちらよりご連絡ください。
写真枚数:30枚
遠州病院まで徒歩4分
OGURIパーキングまで徒歩2分
クリエイト浜松まで徒歩8分
浜松城入口まで徒歩9分
【お問い合わせの物件のご案内はお電話・メールにて事前のご予約から優先させて頂いています】
遠鉄【八幡駅】より徒歩6分!事業用の貸テナント取り扱いのお店です!商圏調査のできるサービスもご用意してます♪ 所有物件を貸したい方 借り手がつかなくて困っている物件の募集もお気軽にお問い合わせくださ