【コスモ第6ビル 203】
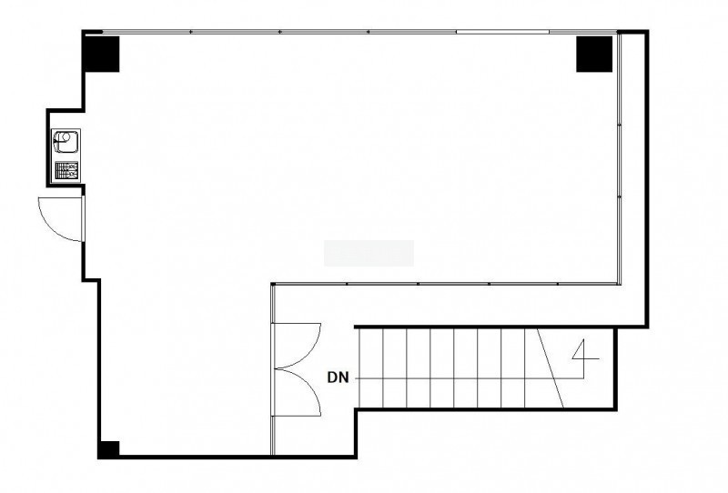
ここに注目!浜松駅から徒歩圏内!ゆりの木通り沿いのビルの2F貸テナント♪専用の階段があり、直接室内に入ることができる造りになっています! 渥美不動産ではお客様へ分かりやすい情報をお届けする為、多くの写真や動画撮影 現地での正確な図面作成を心がけています 物件情報で分からない事があれば お気軽にお問い合わせフォームよりお問い合わせ下さい♪
| 賃料・費用 |
16万5,000円
(+管理費等 1万1,000円)
敷49万5,000円(3ヶ月)礼なし仲16万5,000円
|
|---|---|
| 専有面積 | |
| 住所 | 静岡県浜松市中央区神明町218-14 |
| 交通 | 第一通り駅(徒歩7分)|浜松駅(徒歩12分) |
| 階/階建 | 2階 / 8階建 |
| 築年月 | 築34年(1991年2月) |
| 駐車場 |
なし
|
【WEB面談可】
空室確認、見学、詳細を知りたい方はこちら!
お電話の際は「連合隊の物件」とお伝えください。
情報掲載期限:あと28日(更新日 2025/12/23)
- 物件写真・概要
- 周辺地図
-
【WEB面談可】
空室確認、見学、詳細を知りたい方はこちら!お電話の際は「連合隊の物件」とお伝えください。
053-488-4586情報掲載期限:あと28日(更新日 2025/12/23)
おすすめポイント
- 駅前立地
- 幹線道路沿い
- 袖看板あり
- 出店するなら…この業種がおすすめ!
- 飲食全般(重飲食含む)

- 喫茶・カフェ(軽飲食)

- バー・クラブ・スナック

- 小売・物販

- 美容・健康・介護

- 医療

- 教育・スクール

- 事務所

- アミューズメント

交通色がついているアイコンをクリックすると、本物件までの道順を見ることができます。
物件概要
所在階/建物の階建 2階(203) / 地上8階建 主要採光面 構造 鉄骨造 間取り 契約期間 3年間 権利金 住宅保険 出店推奨業種 小売・物販、事務所、その他 出店不可業種 その他費用 毎月の費用 - 水道料:6,000円
引渡し 相談 管理人 取引態様 仲介 物件No 設備・特徴 - 駅前立地
- 幹線道路沿い
- エレベーター
- 給排水設備
- 男女別トイレ(共用部)
- 袖看板あり
備考 ■保証会社への加入が必要です ■室内工事に掛かる費用は借主にて負担 ■水道代6,000円 ■緊急連絡先が必要 ■トイレは共用です 主な周辺施設色がついているアイコンをクリックすると、本物件までの道順を見ることができます。
-
ホームページはこちら
静岡県知事(2) 第014230号
渥美不動産(株) 【WEB面談可】- 加入団体
- (公社)全日本不動産協会
- 保証協会
- (公社)不動産保証協会
- 公正取引協議会
- 東海不動産公正取引協議会
※連合隊は物件情報の精度向上に努めています:「物件情報に誤りがある」「成約済みである」などお気付きの点がございましたらこちらよりご連絡ください。
写真枚数:30枚
連尺郵便局まで徒歩4分
浜松駅まで徒歩12分
ザザシティ浜松まで徒歩8分
第一通り駅まで徒歩7分
【お問い合わせの物件のご案内はお電話・メールにて事前のご予約から優先させて頂いています】
遠鉄【八幡駅】より徒歩6分!事業用の貸テナント取り扱いのお店です!商圏調査のできるサービスもご用意してます♪ 所有物件を貸したい方 借り手がつかなくて困っている物件の募集もお気軽にお問い合わせくださ