Q-FACEビル静岡県浜松市中央区鍛冶町
ここに注目!飲食店OK、24H利用可能です。スケルトンでのお引渡しのため、様々な業種・業態にご利用できます。ぜひご相談ください!
| 賃料・費用 |
35万1,800円
(+管理費等 3万5,188円)
坪単価:約1.7万円/坪
敷175万9,000円(5ヶ月)礼35万1,800円(1ヶ月)仲35万1,800円
|
|---|---|
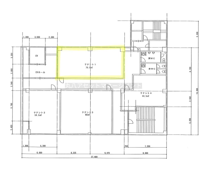
| 専有面積 | 70.5m² (21.32坪) |
| 住所 | 静岡県浜松市中央区鍛冶町320-13 |
| 交通 | 第一通り駅(徒歩5分)|新浜松駅(徒歩6分)|浜松駅(徒歩8分)道順を見る |
| 階/階建 | 4階 / 6階建(地下1階) |
| 築年月 | 築55年(1970年1月) |
| 駐車場 |
なし
|
空室確認、見学、詳細を知りたい方はこちら!
お電話の際は「連合隊の物件」とお伝えください。
情報掲載期限:あと13日(更新日 2025/11/27)
- 物件写真・概要
- 周辺地図
-
空室確認、見学、詳細を知りたい方はこちら!
おすすめポイント
- 駅徒歩5分以内
- 複数路線利用可
- 商店街に面す
- スケルトン
- 出店するなら…この業種がおすすめ!
- 飲食全般(重飲食含む)

- 喫茶・カフェ(軽飲食)

- バー・クラブ・スナック

- 小売・物販

- 美容・健康・介護

- 医療

- 教育・スクール

- 事務所

- アミューズメント

交通色がついているアイコンをクリックすると、本物件までの道順を見ることができます。
物件概要
所在階/建物の階建 4階(4F-1) / 地上6階 地下1階建 主要採光面 構造 鉄筋コンクリート(RC)造 間取り 契約期間 3年間 権利金 住宅保険 出店推奨業種 飲食全般(重飲食含む)、小売・物販、事務所 出店不可業種 接道状況 一方 用途地域 - 商業地域(建ぺい率:80% / 容積率:600%)
引渡し 相談 管理人 無 取引態様 仲介 物件No 設備・特徴 - ビルトインエアコン
- 複数路線利用可
- 商店街に面す
- エレベーター
- スケルトン
- 男女別トイレ(共用部)
- 深夜営業相談可
備考 ※ゴミ回収費11,000円/月~ ※保証会社への加入要 ※保険加入要 主な周辺施設色がついているアイコンをクリックすると、本物件までの道順を見ることができます。
-
ホームページはこちら
静岡県知事 (6) 第11755号
(株)丸八アセットマネージメント
※連合隊は物件情報の精度向上に努めています:「物件情報に誤りがある」「成約済みである」などお気付きの点がございましたらこちらよりご連絡ください。
写真枚数:14枚
4階共用部廊下
4階共用部女性トイレ
4階共用部男性トイレ
4階共用部トイレ入口
浜松駅
ザザシティ浜松
第一通り駅
メイワン
浜松市で貸店舗・貸事務所をお探しならぜひ丸八アセットマネージメントへ!
気になった物件があれば、ぜひ一度お問い合わせください