三友ビル
ここに注目!初生町3階建てビル3階のテナントです。1棟貸し・各階貸しご相談ください。敷地内無料駐車場付。
| 賃料・費用 |
9万9,000円
(+管理費等 -円)
坪単価:約3,996円/坪
敷27万円礼9万円仲9万9,000円
保証金:なし
|
|---|---|
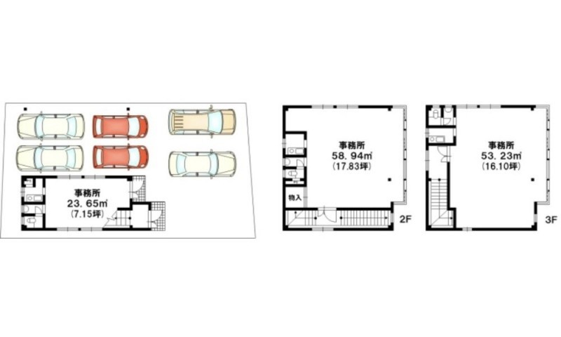
| 専有面積 | 81.92m² (24.78坪) |
| 住所 | 静岡県浜松市中央区初生町1231-4 |
| 交通 | さぎの宮駅(徒歩55分)|自動車学校前駅(徒歩57分)|積志駅(徒歩59分)|「曳馬野」停(徒歩4分) |
| 階/階建 | 3階 / 3階建 |
| 築年月 | 築38年(1987年7月) |
| 駐車場 |
あり (無料)
|
空室確認、見学、詳細を知りたい方はこちら!
お電話の際は「連合隊の物件」とお伝えください。
情報掲載期限:あと26日(更新日 2026/5/19)
- 物件写真・概要
- 周辺地図
-
空室確認、見学、詳細を知りたい方はこちら!
おすすめポイント
- 駐車場あり
交通色がついているアイコンをクリックすると、本物件までの道順を見ることができます。
物件概要
所在階/建物の階建 3階(3階) / 地上3階建 主要採光面 構造 鉄骨造 間取り 契約期間 3年間 権利金 住宅保険 出店推奨業種 出店不可業種 引渡し 相談 管理人 取引態様 仲介 物件No 設備・特徴 - その他:LPガス・水洗
備考 店舗・事務所 借家人賠償保険加入要 賃貸保証契約必須(初回賃料総額100% 更新保証料賃料総額10% 主な周辺施設色がついているアイコンをクリックすると、本物件までの道順を見ることができます。
-
ホームページはこちら
静岡県知事 (3) 第13508号
Room's!賃貸 売買テナント事業部 (株)ライフデザインクリエイターズ〒433-8123
TEL:053-570-6562(テナント賃貸)
FAX:053-401-7906
営業時間:9:00~18:00
定休日:毎週 水曜
※連合隊は物件情報の精度向上に努めています:「物件情報に誤りがある」「成約済みである」などお気付きの点がございましたらこちらよりご連絡ください。
写真枚数:28枚
市立初生幼稚園まで854m
初生保育園まで989m
初生小学校まで995m
北星中学校まで425m
静岡県の収益物件なら弊社にお任せください。賃貸経営のすべてをワンストップでサポートいたします。
浜松市内に3店舗「ルームズ賃貸」を展開中です。入居希望のお客様からは現場の生の声、リフォームニーズや、希望設備、家賃相場が毎日入りますので、ご購入後の賃貸経営のベストなアドバイスができます!