シャイニースクエア浜松
ここに注目!浜松駅徒歩圏内の好立地な貸店舗・事務所です。ラウンジスペースや喫煙室があります。
| 賃料・費用 |
13万4,920円
(+管理費等 -円)
坪単価:約9,350円/坪
敷73万5,928円礼なし仲13万4,920円
保証金:なし
|
|---|---|
| 専有面積 | 47.73m² (14.43坪) |
| 住所 | 静岡県浜松市中央区元浜町34-15 |
| 交通 | 遠州病院駅(徒歩5分)|八幡駅(徒歩10分)|第一通り駅(徒歩11分) |
| 階/階建 | 4階 / 9階建 |
| 築年月 | 築41年(1984年12月) |
| 駐車場 |
なし
|
空室確認、見学、詳細を知りたい方はこちら!
お電話の際は「連合隊の物件」とお伝えください。
情報掲載期限:あと24日(更新日 2025/12/9)
- 物件写真・概要
- 周辺地図
-
▼クリックで左の拡大画像が変わります。 すべての写真を拡大
空室確認、見学、詳細を知りたい方はこちら!
おすすめポイント
- 駅徒歩5分以内
- 男女別トイレ
交通色がついているアイコンをクリックすると、本物件までの道順を見ることができます。
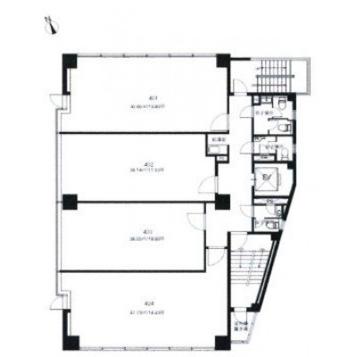
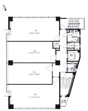
物件概要
所在階/建物の階建 4階(404) / 地上9階建 主要採光面 構造 鉄骨鉄筋コンクリート(SRC)造 間取り 契約期間 2年間 権利金 住宅保険 出店推奨業種 出店不可業種 引渡し 相談 管理人 取引態様 仲介 物件No 設備・特徴 - エレベーター
- 男女別トイレ
備考 ゴミ処理代 3174円(月額) 店舗・事務所 借家人賠償保険加入要 賃貸保証契約必須(初回賃料総額65% 更新保証料賃料総額10% ゴミ処理代/月 3,174円 フリーレント2ヶ月 ※2年以内の解約で違約金が発生します。 主な周辺施設色がついているアイコンをクリックすると、本物件までの道順を見ることができます。
-
ホームページはこちら
静岡県知事 (3) 第13508号
Room's!賃貸 売買テナント事業部 (株)ライフデザインクリエイターズ〒433-8123
TEL:053-570-6562(テナント賃貸)
FAX:053-401-7906
営業時間:9:00~18:00
定休日:毎週 水曜
※連合隊は物件情報の精度向上に努めています:「物件情報に誤りがある」「成約済みである」などお気付きの点がございましたらこちらよりご連絡ください。
写真枚数:26枚
給湯室
給湯室
共用男性用
共用男性用
共用女性用
共用女性用
共用ラウンジ
共用ラウンジ
共用ラウンジ
共用ラウンジ
EVホール
非常階段
浜松学芸高校まで987m
静岡文化芸術大学まで686m
ザザシティまで1216m
フィーネ東田町店まで589m
静岡県の収益物件なら弊社にお任せください。賃貸経営のすべてをワンストップでサポートいたします。
浜松市内に3店舗「ルームズ賃貸」を展開中です。入居希望のお客様からは現場の生の声、リフォームニーズや、希望設備、家賃相場が毎日入りますので、ご購入後の賃貸経営のベストなアドバイスができます!