第一伊藤ビル
ここに注目!浜松駅南口から徒歩3分の立地☆9階建てビルの1階テナントです!周辺にはコインパーキングも充実しています。
| 賃料・費用 |
44万2,860円
(+管理費等 -円)
坪単価:約1.3万円/坪
敷201万3,000円礼なし仲44万2,860円
保証金:なし
|
|---|---|
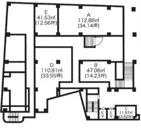
| 専有面積 | 110.91m² (33.55坪) |
| 住所 | 静岡県浜松市中央区砂山町324-1 |
| 交通 | 新浜松駅(徒歩3分)|第一通り駅(徒歩10分)|遠州病院駅(徒歩15分) |
| 階/階建 | 1階 / 9階建 |
| 築年月 | 築40年(1986年1月) |
| 駐車場 |
2万2,000円/台
|
空室確認、見学、詳細を知りたい方はこちら!
お電話の際は「連合隊の物件」とお伝えください。
情報掲載期限:あと25日(更新日 2026/5/19)
- 物件写真・概要
- 周辺地図
-
空室確認、見学、詳細を知りたい方はこちら!
おすすめポイント
- 駅徒歩3分以内
- 複数路線利用可
- 駅前立地
- 男女別トイレ
- エアコン付
交通色がついているアイコンをクリックすると、本物件までの道順を見ることができます。
物件概要
所在階/建物の階建 1階(1-D) / 地上9階建 主要採光面 構造 鉄筋コンクリート(RC)造 間取り 契約期間 3年間 権利金 住宅保険 引渡し 相談 管理人 取引態様 仲介 物件No 設備・特徴 - エアコン付
- 複数路線利用可
- 駅前立地
- 男女別トイレ
- その他:エアコン・防犯カメラ・エレベーター
備考 事務所 借家人賠償保険加入要 賃貸保証契約必須(初回賃料総額100% 更新保証料賃料総額10% ・敷地内駐車場/22,000円(税込)別途契約要:敷金1ヶ月 AM7:00~PM10:00 ・水道料金込み 主な周辺施設色がついているアイコンをクリックすると、本物件までの道順を見ることができます。
-
ホームページはこちら
静岡県知事 (3) 第13508号
Room's!賃貸 売買テナント事業部 (株)ライフデザインクリエイターズ〒433-8123
TEL:053-570-6562(テナント賃貸)
FAX:053-401-7906
営業時間:9:00~18:00
定休日:毎週 水曜
※連合隊は物件情報の精度向上に努めています:「物件情報に誤りがある」「成約済みである」などお気付きの点がございましたらこちらよりご連絡ください。
写真枚数:6枚
和食さと浜松板屋町店まで904m
遠鉄百貨店まで347m
メイワンまで334m
浜松郵便局まで546m
静岡県の収益物件なら弊社にお任せください。賃貸経営のすべてをワンストップでサポートいたします。
浜松市内に3店舗「ルームズ賃貸」を展開中です。入居希望のお客様からは現場の生の声、リフォームニーズや、希望設備、家賃相場が毎日入りますので、ご購入後の賃貸経営のベストなアドバイスができます!