カルディアビル
ここに注目!浜松駅まで徒歩10分の一棟貸のビル。各階にトイレあり。
| 賃料・費用 |
48万4,000円
(+管理費等 -円)
坪単価:約8,483円/坪
敷264万円礼48万4,000円(1ヶ月)仲48万4,000円
|
|---|---|
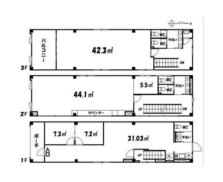
| 専有面積 | 188.66m² (57.06坪) |
| 住所 | 静岡県浜松市中央区板屋町517 |
| 交通 | 第一通り駅(徒歩4分)|遠州病院駅(徒歩5分)|新浜松駅(徒歩8分) |
| 階/階建 | 1階 / 3階建 |
| 築年月 | 築25年(2000年8月) |
| 駐車場 |
なし
|
空室確認、見学、詳細を知りたい方はこちら!
お電話の際は「連合隊の物件」とお伝えください。
情報掲載期限:あと28日(更新日 2025/12/19)
- 物件写真・概要
- 周辺地図
-
空室確認、見学、詳細を知りたい方はこちら!
おすすめポイント
- 駅徒歩5分以内
- 複数路線利用可
- 男女別トイレ
交通色がついているアイコンをクリックすると、本物件までの道順を見ることができます。
物件概要
所在階/建物の階建 1階(-) / 地上3階建 主要採光面 構造 鉄骨造 間取り 契約期間 5年間 権利金 住宅保険 引渡し 2026年4月 管理人 取引態様 仲介 物件No 設備・特徴 - 都市ガス
- 複数路線利用可
- 男女別トイレ
備考 事務所 借家人賠償保険加入要 賃貸保証契約必須(初回賃料総額100% 更新保証料賃料総額10% 主な周辺施設色がついているアイコンをクリックすると、本物件までの道順を見ることができます。
-
ホームページはこちら
静岡県知事 (3) 第13508号
Room's!賃貸 売買テナント事業部 (株)ライフデザインクリエイターズ〒433-8123
TEL:053-570-6562(テナント賃貸)
FAX:053-401-7906
営業時間:9:00~18:00
定休日:毎週 水曜
※連合隊は物件情報の精度向上に努めています:「物件情報に誤りがある」「成約済みである」などお気付きの点がございましたらこちらよりご連絡ください。
写真枚数:6枚
静岡文化芸術大学まで792m
和食さと浜松板屋町店まで129m
サンフェリーチェまで446m
ステーキガスト東田町店まで173m
静岡県の収益物件なら弊社にお任せください。賃貸経営のすべてをワンストップでサポートいたします。
浜松市内に3店舗「ルームズ賃貸」を展開中です。入居希望のお客様からは現場の生の声、リフォームニーズや、希望設備、家賃相場が毎日入りますので、ご購入後の賃貸経営のベストなアドバイスができます!