LOTUS LIFE
ここに注目!浜松駅まで徒歩15分。浜松市役所まで徒歩5分の立地。近隣にはコインパーキングが多いエリアです。
| 賃料・費用 |
20万3,500円
(+管理費等 -円)
坪単価:約6,305円/坪
敷18万5,000円礼なし仲20万3,500円
|
|---|---|
| 専有面積 | 106.72m² (32.28坪) |
| 住所 | 静岡県浜松市中央区尾張町124-3 |
| 交通 | 遠州病院駅(徒歩7分)|第一通り駅(徒歩10分)|新浜松駅(徒歩15分) |
| 階/階建 | 4階 / 4階建 |
| 築年月 | 築11年(2015年4月) |
| 駐車場 |
なし
|
空室確認、見学、詳細を知りたい方はこちら!
お電話の際は「連合隊の物件」とお伝えください。
情報掲載期限:あと20日(更新日 2026/4/6)
- 物件写真・概要
- 周辺地図
-
▼クリックで左の拡大画像が変わります。 すべての写真を拡大
空室確認、見学、詳細を知りたい方はこちら!
おすすめポイント
- 複数路線利用可
- 男女別トイレ
交通色がついているアイコンをクリックすると、本物件までの道順を見ることができます。
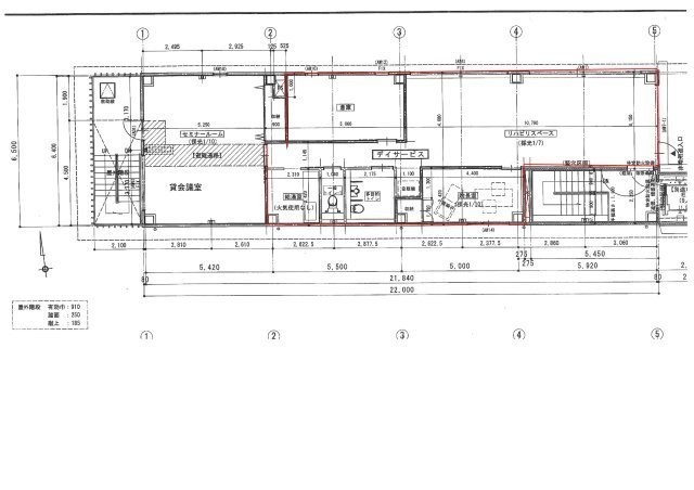
物件概要
所在階/建物の階建 4階(4F) / 地上4階建 主要採光面 構造 鉄骨造 間取り 契約期間 3年間 権利金 住宅保険 引渡し 相談 管理人 取引態様 仲介 物件No 設備・特徴 - エレベーター
- 複数路線利用可
- 男女別トイレ
備考 事務所 借家人賠償保険加入要 賃貸保証契約必須(初回賃料総額100% 更新保証料賃料総額10% 駐車場無し 主な周辺施設色がついているアイコンをクリックすると、本物件までの道順を見ることができます。
-
ホームページはこちら
静岡県知事 (3) 第13508号
Room's!賃貸 売買テナント事業部 (株)ライフデザインクリエイターズ〒433-8123
TEL:053-570-6562(テナント賃貸)
FAX:053-401-7906
営業時間:9:00~18:00
定休日:毎週 水曜
※連合隊は物件情報の精度向上に努めています:「物件情報に誤りがある」「成約済みである」などお気付きの点がございましたらこちらよりご連絡ください。
写真枚数:21枚
貸会議室
貸会議室
静岡文化芸術大学まで1063m
ザザシティまで864m
遠鉄百貨店まで1048m
ヤマダ電機テックランド浜松中央店まで651m
静岡県の収益物件なら弊社にお任せください。賃貸経営のすべてをワンストップでサポートいたします。
浜松市内に3店舗「ルームズ賃貸」を展開中です。入居希望のお客様からは現場の生の声、リフォームニーズや、希望設備、家賃相場が毎日入りますので、ご購入後の賃貸経営のベストなアドバイスができます!