和合メディカルビル
ここに注目!医療ビルの1室、クリニック等におすすめです。
| 賃料・費用 |
44万円
(+管理費等 5万5,000円)
坪単価:約8,816円/坪
敷240万円礼なし仲44万円
|
|---|---|
| 専有面積 | 165m² (49.91坪) |
| 住所 | 静岡県浜松市中央区和合町27-13 |
| 交通 | 新浜松駅(バスで29分)|助信駅(徒歩27分)|曳馬駅(徒歩29分)|「聖隷健診センター」停(徒歩3分) |
| 階/階建 | 路面 / 3階建 |
| 築年月 | 築23年(2002年2月) |
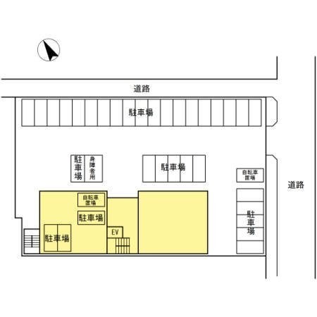
| 駐車場 |
あり (無料)
共用駐車場 |
空室確認、見学、詳細を知りたい方はこちら!
お電話の際は「連合隊の物件」とお伝えください。
情報掲載期限:あと27日(更新日 2025/12/19)
- 物件写真・概要
- 周辺地図
-
空室確認、見学、詳細を知りたい方はこちら!
おすすめポイント
- 路面店
- 複数路線利用可
- 駐車場あり
- スケルトン
交通色がついているアイコンをクリックすると、本物件までの道順を見ることができます。
- 助信駅遠州鉄道鉄道線徒歩27分(約2.2km)
- 曳馬駅遠州鉄道鉄道線徒歩29分(約2.3km)
- 新浜松駅遠州鉄道鉄道線バス29分
- 「聖隷健診センター」停徒歩3分(約200m)
物件概要
所在階/建物の階建 3階(302) / 地上3階建 主要採光面 構造 鉄骨造 間取り 契約期間 3年間 権利金 住宅保険 出店推奨業種 出店不可業種 引渡し 相談 管理人 取引態様 仲介 物件No 設備・特徴 - エレベーター
- 路面店
- 複数路線利用可
- スケルトン
備考 店舗 借家人賠償保険加入要 賃貸保証契約必須(初回賃料総額100% 更新保証料賃料総額10% 駐車場要確認 主な周辺施設色がついているアイコンをクリックすると、本物件までの道順を見ることができます。
-
ホームページはこちら
静岡県知事 (3) 第13508号
Room's!賃貸 売買テナント事業部 (株)ライフデザインクリエイターズ〒433-8123
TEL:053-570-6562(テナント賃貸)
FAX:053-401-7906
営業時間:9:00~18:00
定休日:毎週 水曜
※連合隊は物件情報の精度向上に努めています:「物件情報に誤りがある」「成約済みである」などお気付きの点がございましたらこちらよりご連絡ください。
写真枚数:15枚
浜松城北工業高校まで731m
浜松学院大学短期大学部まで761m
静岡大学浜松キャンパスまで1238m
牛角 浜松和合店まで68m
静岡県の収益物件なら弊社にお任せください。賃貸経営のすべてをワンストップでサポートいたします。
浜松市内に3店舗「ルームズ賃貸」を展開中です。入居希望のお客様からは現場の生の声、リフォームニーズや、希望設備、家賃相場が毎日入りますので、ご購入後の賃貸経営のベストなアドバイスができます!