白羽ビル
ここに注目!1フロア1テナントの貸店舗事務所です!大きな窓で室内が明るいです。中田島街道の大畑バス停まで徒歩1分です!!
| 賃料・費用 |
5万5,000円
(+管理費等 5,500円)
坪単価:約3,436円/坪
敷15万円礼なし仲5万5,000円
保証金:なし
|
|---|---|
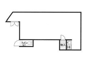
| 専有面積 | 52.94m² (16.01坪) |
| 住所 | 静岡県浜松市中央区白羽町672 |
| 交通 | 新浜松駅(バスで8分)|「大畑」停(徒歩1分) |
| 階/階建 | 3階 / 4階建 |
| 築年月 | 築34年(1991年12月) |
| 駐車場 |
なし
|
空室確認、見学、詳細を知りたい方はこちら!
お電話の際は「連合隊の物件」とお伝えください。
情報掲載期限:あと24日(更新日 2025/12/19)
- 物件写真・概要
- 周辺地図
-
空室確認、見学、詳細を知りたい方はこちら!
おすすめポイント
- エアコン付
- 出店するなら…この業種がおすすめ!
- 飲食全般(重飲食含む)

- 喫茶・カフェ(軽飲食)

- バー・クラブ・スナック

- 小売・物販

- 美容・健康・介護

- 医療

- 教育・スクール

- 事務所

- アミューズメント

交通
- 新浜松駅遠州鉄道鉄道線バス8分
- 「大畑」停徒歩1分
物件概要
所在階/建物の階建 3階(3階) / 地上4階建 主要採光面 構造 鉄骨造 間取り 契約期間 2年間 更新料/更新手数料 1万1,000円 権利金 住宅保険 出店推奨業種 教育・スクール、事務所 出店不可業種 引渡し 相談 管理人 取引態様 仲介 物件No 設備・特徴 - 都市ガス
- エアコン付
- 照明器具付
- ビルトインエアコン
備考 店舗・事務所 借家人賠償保険加入要 賃貸保証契約必須(ふじさん宅建保証 初回総賃料83.5%) 主な周辺施設色がついているアイコンをクリックすると、本物件までの道順を見ることができます。
-
ホームページはこちら
静岡県知事 (3) 第13508号
Room's!賃貸 売買テナント事業部 (株)ライフデザインクリエイターズ〒433-8123
TEL:053-570-6562(テナント賃貸)
FAX:053-401-7906
営業時間:9:00~18:00
定休日:毎週 水曜
※連合隊は物件情報の精度向上に努めています:「物件情報に誤りがある」「成約済みである」などお気付きの点がございましたらこちらよりご連絡ください。
写真枚数:25枚
※LED照明
静岡県の収益物件なら弊社にお任せください。賃貸経営のすべてをワンストップでサポートいたします。
浜松市内に3店舗「ルームズ賃貸」を展開中です。入居希望のお客様からは現場の生の声、リフォームニーズや、希望設備、家賃相場が毎日入りますので、ご購入後の賃貸経営のベストなアドバイスができます!