竹内ビル1F 電車通り沿いで視認性ヨシ!
ここに注目!☆★電車踊り沿いにある貸店舗☆★ フローリングなどリフォーム済なのでスムーズに入居できます。 学習塾、美容院、事務所などに最適な物件です。 お問い合わせは担当の加藤の携帯電話(090-5879-9473)までお願いします。
| 賃料・費用 |
15万2,000円
(+管理費等 -円)
坪単価:約1.0万円/坪
敷45万6,000円(3ヶ月)礼15万2,000円(1ヶ月)仲15万2,000円
|
|---|---|
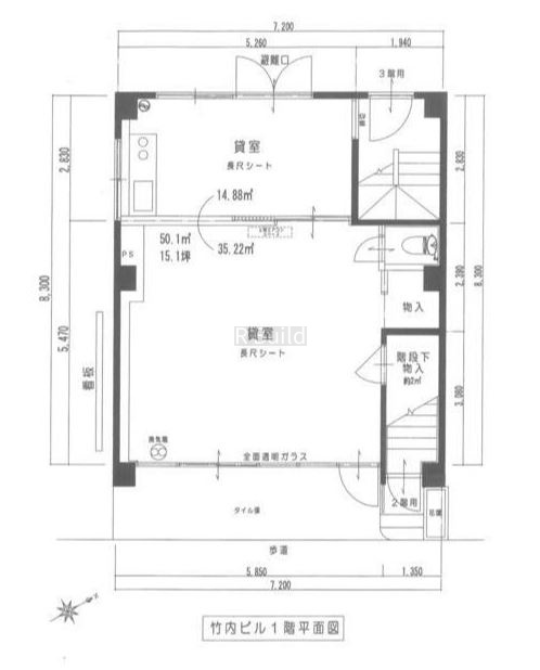
| 専有面積 | 50.1m² (15.15坪) |
| 住所 | 静岡県浜松市中央区八幡町199-1 |
| 交通 | |
| 階/階建 | 路面 / 4階建 |
| 築年月 | 築46年(1979年12月) |
| 駐車場 |
あり 駐車可能台数:2台
|
空室確認、見学、詳細を知りたい方はこちら!
お電話の際は「連合隊の物件」とお伝えください。
情報掲載期限:あと26日(更新日 2025/12/15)
- 物件写真・概要
- 周辺地図
-
空室確認、見学、詳細を知りたい方はこちら!
おすすめポイント
- 即入居可
- 路面店
- 幹線道路沿い
- 駐車2台以上可
- 出店するなら…この業種がおすすめ!
- 飲食全般(重飲食含む)

- 喫茶・カフェ(軽飲食)

- バー・クラブ・スナック

- 小売・物販

- 美容・健康・介護

- 医療

- 教育・スクール

- 事務所

- アミューズメント

※出店不可の業種:飲食全般
物件概要
所在階/建物の階建 1階 / 地上4階建 主要採光面 構造 鉄筋コンクリート(RC)造 間取り 契約期間 3年間 権利金 住宅保険 出店推奨業種 美容・健康・介護、教育・スクール、事務所 出店不可業種 飲食全般 引渡し 即時 管理人 取引態様 仲介 物件No 設備・特徴 - 幹線道路沿い
- 路面店
備考 主な周辺施設色がついているアイコンをクリックすると、本物件までの道順を見ることができます。
-
※連合隊は物件情報の精度向上に努めています:「物件情報に誤りがある」「成約済みである」などお気付きの点がございましたらこちらよりご連絡ください。
写真枚数:5枚
店舗・事務所・倉庫などテナント物件に特化した物件情報が満載! お気軽にお問い合わせください! ご購入は土地・住宅があります。掲載のないものもご相談ください。