ここに注目!浜松駅徒歩圏内☆デザイナーズ1LDK☆オシャレなメゾネットタイプ☆南向きで陽当たり良好♪真っ白な居室♪17帖のLDKは一見の価値あり♪問い合わせはお早めに♪
| 賃料・費用 |
10万円(+管理費等 5,000円)
礼なし仲11万円
保証金:12万円
|
|---|---|
| 間取・専有 |
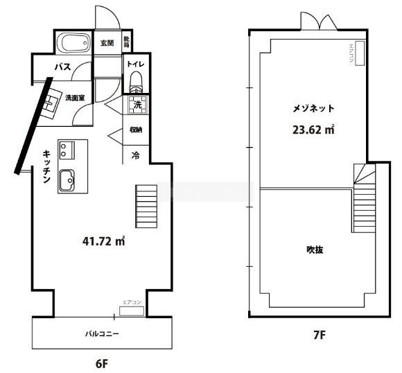
1LDK(65.34m²)└ 洋室7帖 LDK17.5帖
|
| 住所 | 静岡県浜松市中央区龍禅寺町 (詳細非公開) |
| 交通 | 新浜松駅(徒歩15分)|第一通り駅(徒歩19分)|遠州病院駅(徒歩23分) |
| 築年月 | 築20年(2005年3月) |
| 駐車場 |
あり (8,800円/台) 駐車可能台数:2台
|
【WEB面談可】
空室確認、見学、詳細を知りたい方はこちら!
お電話の際は「連合隊の物件」とお伝えください。
情報掲載期限:あと29日(更新日 2026/2/11)
- 物件写真・概要
- 周辺地図
-
▼クリックで左の拡大画像が変わります。 すべての写真を拡大
【WEB面談可】
空室確認、見学、詳細を知りたい方はこちら!おすすめポイント
- バス/トイレ別
- オートロック
- 2階以上
- 都市ガス
- 室内洗濯機置場
- 駐車2台以上可
- エアコン付
- 独立洗面台
- 追い焚き風呂
- ペット相談可
- デザイナーズ
- 敷金・礼金0円
- 近くて便利!徒歩5分以内にある施設
- 3分
3分- 3分
3分
交通
- 新浜松駅遠州鉄道鉄道線徒歩15分
- 第一通り駅遠州鉄道鉄道線徒歩19分
- 遠州病院駅遠州鉄道鉄道線徒歩23分
物件概要
所在階/建物の階建 7階(601) / 地上7階建 総戸数 主要採光面 南 構造 鉄筋コンクリート(RC)造 バルコニー - バルコニー南向き
契約期間 2年間 住宅保険 お問合せください その他費用 毎月の費用 - 24時間管理費:2,420円
その他 - 鍵交換代:1万1,000円
入居可能時期 2026年2月中旬 管理人 取引態様 仲介 物件No 13592572 設備・特徴 - 独立洗面台
- ブロードバンド回線(光ファイバー等の高速インターネット)
- メゾネット
- デザイナーズ
- 最上階
- 角部屋
- 保証人不要
- インターネット利用料無料
- ネット無料
- 日当り良好
- システムキッチン
- コンロ2口
- 都市ガス
- バス/トイレ別
- 温水洗浄トイレ
- シャワー付洗面化粧台
- 浴室乾燥機
- エアコン付
- オートロック
- モニタ付インターホン
- BSアンテナ
- ケーブルテレビ
- 照明器具付
- 室内洗濯機置場
- エレベーター
- シューズボックス
- 複数路線利用可
- 浴室に窓
- 家賃保証会社利用可
- その他:洗面化粧台・光回線・バルコニー・公共下水
備考 浜松駅徒歩圏内・駅まで平坦・デザイナーズマンション・メゾネット・駐車1台可・駐車2台可:要問合せ・上階なし・インターネット無料・エレベータ・アイランドキッチン・対面キッチン・オートロック・エアコン2基・TVモニターホン・シャワートイレ・照明付き・浴室乾燥付き・保証人不要 ※現況優先 メゾネット 最上階 角部屋 南向き 保証人不要 インターネット無料 学区
- 浜松市立竜禅寺小学校約581m(徒歩8分)
- 浜松市立南部中学校約1.3km(徒歩16分)
- その他の学区:静岡文化芸術大学 1978m、浜松市立竜禅寺小学校 581m、私立浜松開誠館高校 2007m、浜松市立南部中学校 1274m
主な周辺施設
- ビオ・あつみエピスリー浜松約509m(徒歩7分)
- セブンイレブン浜松龍禅寺町店約197m(徒歩3分)
- サンドラッグ北寺島店約714m(徒歩9分)
- 医療法人社団綾和会浜松南病院約1.7km(徒歩21分)
- 静岡文化芸術大学約2km(徒歩25分)
- 浜松市立竜禅寺小学校約581m(徒歩8分)
- 浜松竜禅寺郵便局約194m(徒歩3分)
- 浜松市立南図書館約753m(徒歩10分)
- 浜松東警察署約1.9km(徒歩24分)
- 私立浜松開誠館高校約2.1km(徒歩26分)
-
※連合隊は物件情報の精度向上に努めています:「物件情報に誤りがある」「成約済みである」などお気付きの点がございましたらこちらよりご連絡ください。
写真枚数:22枚
建物外観
駐車場
その他共有部分
セキュリティ
建物外観
居室・リビング
その他部屋・スペース
キッチン
バス
トイレ
洗面所
その他設備
バルコニー
玄関
セキュリティ
その他設備
眺望
ビオ・あつみエピスリー浜松
セブンイレブン浜松龍禅寺町店
サンドラッグ北寺島店
医療法人社団綾和会浜松南病院
浜松駅、天竜川駅まで送迎させて頂きます。初期費用クレジットカード払い可!朝9時より通常営業。定休日:水曜日(水曜日は定休になる為、連絡・対応は木曜日になります。ご了承ください)