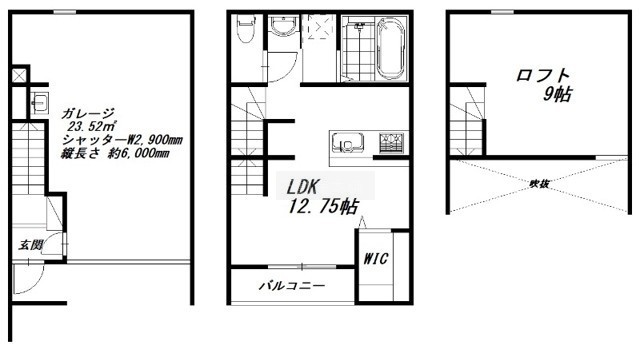
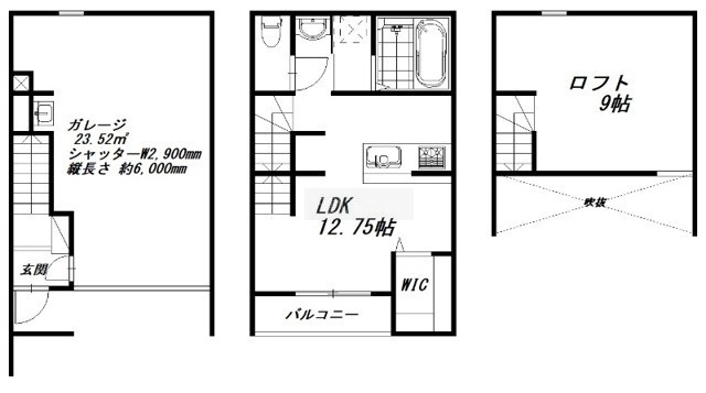
ここに注目!美薗中央公園駅まで徒歩2分のエリアに、新築ガレージハウスが登場!!車・バイク好きの方注目です♪ワンランク上の充実した設備と、9帖の広いロフトがポイント(^^♪
| 賃料・費用 |
8万3,000円(+管理費等 -円)
敷16万6,000円(2ヶ月)礼8万3,000円(1ヶ月)仲9万1,300円
|
|---|---|
| 間取・専有 |
ワンルーム(63.76m²)└ 洋室12.75帖
|
| 住所 | 静岡県浜松市浜名区貴布祢 (詳細非公開) |
| 交通 | 美薗中央公園駅(徒歩2分)|浜北駅(徒歩12分)|遠州小林駅(徒歩16分)|バス 「貴布祢」停(徒歩11分) |
| 築年月 | 新築(2026年5月) |
| 駐車場 |
あり (無料) 駐車可能台数:1台
|
空室確認、見学、詳細を知りたい方はこちら!
お電話の際は「連合隊の物件」とお伝えください。
情報掲載期限:あと29日(更新日 2026/5/23)
- 物件写真・概要
- 周辺地図
-
▼クリックで左の拡大画像が変わります。 すべての写真を拡大
空室確認、見学、詳細を知りたい方はこちら!
おすすめポイント
- オール電化
- 南向き
- 角地
- 都市ガス
- 車庫あり
- 駐車場あり
- エアコン付
- 平屋
- 追い焚き風呂
- ペット相談可
- リフォーム済み
- 敷金・礼金0円
- 近くて便利!徒歩5分以内にある施設
- 2分
2分- 4分
4分
交通
- 美薗中央公園駅遠州鉄道鉄道線駅近!徒歩2分
- 浜北駅遠州鉄道鉄道線徒歩12分
- 遠州小林駅遠州鉄道鉄道線徒歩16分
- バス 「貴布祢」停徒歩11分
物件概要
建物の階建 2階(E) / 地上2階建 主要採光面 南 構造 木造 契約期間 2年間 住宅保険 1万8,000円(2年間) その他費用 毎月の費用 - 24時間管理費:880円
入居可能時期 2026年7月上旬 管理人 取引態様 仲介 物件No 13828774 設備・特徴 - ガスコンロ
- 独立洗面台
- ロフト付
- ウォークインクローゼット
- 最上階
- 保証人不要
- インターネット利用料無料
- システムキッチン
- コンロ3口以上
- LPガス
- バス/トイレ別
- 温水洗浄トイレ
- シャワー付洗面化粧台
- 追い焚き風呂
- エアコン付
- モニタ付インターホン
- 室内洗濯機置場
- 宅配BOX
- シューズボックス
- 浴室1坪以上
- 家賃保証会社利用可
- その他:ガスキッチン・洗面化粧台・バルコニー
備考 新築 遠鉄沿線 美薗中央公園駅 ガレージハウス テラスハウス 駐車1台無料 対面キッチン ウォークインクローゼット 宅配ボックス インターネット無料 システムキッチン 保証会社必須 更新事務手数料16,500円(税込)/2年 ※現況優先 ロフト テラスハウス ウォークインクローゼット 最上階 南向き 保証人不要 インターネット無料 主な周辺施設
- プレ葉ウォーク浜北約1.2km(徒歩15分)
- マックスバリュ浜北店約710m(徒歩9分)
- ミニストップ浜松貴布祢店約86m(徒歩2分)
- クリエイトエス・ディー浜松浜北店約281m(徒歩4分)
- 浜松赤十字病院約1.1km(徒歩14分)
- 浜松市立浜北図書館約1.1km(徒歩14分)
- 浜松いわた信用金庫浜北支店約116m(徒歩2分)
- 美薗中央公園約520m(徒歩7分)
-
ホームページはこちら
静岡県知事 (3) 第13116号
不動産本舗 本店
※連合隊は物件情報の精度向上に努めています:「物件情報に誤りがある」「成約済みである」などお気付きの点がございましたらこちらよりご連絡ください。
写真枚数:30枚
建物外観
その他
その他
建物外観
建物外観
居室・リビング
その他部屋・スペース
キッチン
バス
トイレ
洗面所
収納
バルコニー
玄関
セキュリティ
その他設備
眺望
その他
居室・リビング
キッチン
バス
その他
その他
その他
その他
プレ葉ウォーク浜北
マックスバリュ浜北店
ミニストップ浜松貴布祢店
クリエイトエス・ディー浜松浜北店
浜松市中央区・浜名区は【不動産本舗 本店】にお任せください!あなたのお部屋探しを全力でサポートいたします!!営業時間:9時~19時、定休日:毎週水曜日