ここに注目!浜松駅までのアクセス良好な東伊場エリアの分譲賃貸☆ 広く開放的な洋室や、収納力大のサービスルームも魅力です☆ お財布にやさしい都市ガス物件☆
| 賃料・費用 |
13万円(+管理費等 -円)
敷26万円(2ヶ月)礼なし仲14万3,000円
|
|---|---|
| 間取・専有 |
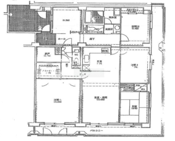
3LDK(142.14m²)└ 和室6帖 洋室13.6帖 洋室6.4帖 S4.5帖 LDK25.3帖
|
| 住所 | 静岡県浜松市中央区東伊場 (詳細非公開) |
| 交通 | 新浜松駅(徒歩17分) |
| 築年月 | 築39年(1986年2月) |
| 駐車場 |
あり (無料) 駐車可能台数:1台
敷地外(物件より170m) |
空室確認、見学、詳細を知りたい方はこちら!
お電話の際は「連合隊の物件」とお伝えください。
情報掲載期限:あと30日(更新日 2025/12/29)
- 物件写真・概要
- 周辺地図
-
▼クリックで左の拡大画像が変わります。 すべての写真を拡大
空室確認、見学、詳細を知りたい方はこちら!
おすすめポイント
- バス/トイレ別
- オートロック
- 2階以上
- 都市ガス
- 室内洗濯機置場
- 駐車場あり
- エアコン付
- 独立洗面台
- 追い焚き風呂
- ペット相談可
- デザイナーズ
- 敷金・礼金0円
交通
- 新浜松駅遠州鉄道鉄道線徒歩17分
物件概要
所在階/建物の階建 6階(606) / 地上8階建 総戸数 主要採光面 南 構造 鉄筋コンクリート(RC)造 契約期間 2年間 住宅保険 2万2,000円(2年間) その他費用 その他 - 町内会費:800円
入居可能時期 相談 管理人 取引態様 仲介 物件No 11154675 設備・特徴 - ガスコンロ
- 独立洗面台
- 保証人不要
- 分譲タイプ
- 日当り良好
- システムキッチン
- コンロ3口以上
- 都市ガス
- バス/トイレ別
- 温水洗浄トイレ
- 追い焚き風呂
- エアコン付
- モニタ付インターホン
- BSアンテナ
- 室内洗濯機置場
- シューズボックス
- 複数路線利用可
- その他:ガスキッチン・洗面化粧台・バルコニー・公共下水
備考 南向き 分譲賃貸 遠鉄沿線 JR沿線 駐車1台無料(近隣 物件より170m) バイク置き場 駐輪場 エレベータ― 都市ガス エアコン ※現況優先 分譲リース 南向き 保証人不要 学区
- 浜松市立県居小学校約474m(徒歩6分)
主な周辺施設
- 西友上浅田店約787m(徒歩10分)
- 浜松市立県居小学校約474m(徒歩6分)
- JA静岡厚生連遠州病院約2.4km(徒歩30分)
- 浜松市立南図書館約1.2km(徒歩15分)
- 浜松信用金庫東伊場支店約576m(徒歩8分)
- 浜松市役所約1.5km(徒歩19分)
-
ホームページはこちら
静岡県知事 (3) 第13116号
不動産本舗 本店
※連合隊は物件情報の精度向上に努めています:「物件情報に誤りがある」「成約済みである」などお気付きの点がございましたらこちらよりご連絡ください。
写真枚数:26枚
建物外観
居室・リビング
その他部屋・スペース
キッチン
バス
トイレ
洗面所
収納
バルコニー
玄関
セキュリティ
その他設備
眺望
その他
居室・リビング
キッチン
バス
収納
その他
その他
その他
西友上浅田店
浜松市立県居小学校
JA静岡厚生連遠州病院
浜松市立南図書館
浜松市中央区・浜名区は【不動産本舗 本店】にお任せください!あなたのお部屋探しを全力でサポートいたします!!営業時間:9時~19時、定休日:毎週水曜日