テラスハウス|賃貸
リバーサイド南平
ここに注目!人気のテラスハウス!川近く閑静な住宅地!日当たり良好!
| 賃料・費用 |
4万9,000円(+管理費等 5,000円)
敷なし礼なし仲5万3,900円
保証金:11万円(償却区分:解約)
|
|---|---|
| 間取・専有 |
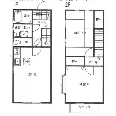
2LDK(66.24m²)└ LDK12帖
|
| 住所 | 静岡県浜松市中央区入野町16131-5 |
| 交通 | 遠鉄バス「南平」停 (徒歩5分) |
| 築年月 | 築30年(1996年1月) |
| 駐車場 |
あり (6,000円/台) 駐車可能台数:2台
|
【WEB面談可】
空室確認、見学、詳細を知りたい方はこちら!
3月は引越シーズンです。お問合せはお早めに!
お電話の際は「連合隊の物件」とお伝えください。
053-473-1200
情報掲載期限:あと30日(更新日 2026/3/22)
- 物件写真・概要
- 周辺地図
-
おすすめポイント
- オール電化
- 南向き
- 角地
- 都市ガス
- 車庫あり
- 駐車2台以上可
- エアコン付
- 平屋
- 追い焚き風呂
- ペット相談可
- リフォーム済み
- 敷金・礼金0円
交通
- 遠鉄バス「南平」停 徒歩5分
物件概要
建物の階建 B / 地上2階建 主要採光面 南 構造 木造 バルコニー あり- バルコニー南向き
契約期間 2年間 住宅保険 お問合せください その他費用 一時金 - 鍵交換費:2万6,400円
入居可能時期 即時 管理人 無 取引態様 仲介 物件No 設備・特徴 - 日当り良好
- シューズボックス
- バス/トイレ別
- 独立洗面台
- LPガス
備考 駐車場は2台契約必須となります(2台で6000円/月) 学区色がついているアイコンをクリックすると、本物件までの道順を見ることができます。
主な周辺施設色がついているアイコンをクリックすると、本物件までの道順を見ることができます。
-
※連合隊は物件情報の精度向上に努めています:「物件情報に誤りがある」「成約済みである」などお気付きの点がございましたらこちらよりご連絡ください。
写真枚数:15枚
浜松市内の不動産ことなら美建コーポレーションにおまかせ!! ☆お気軽にお問い合わせ下さい☆