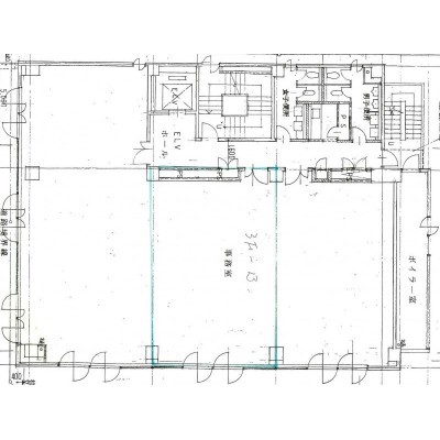
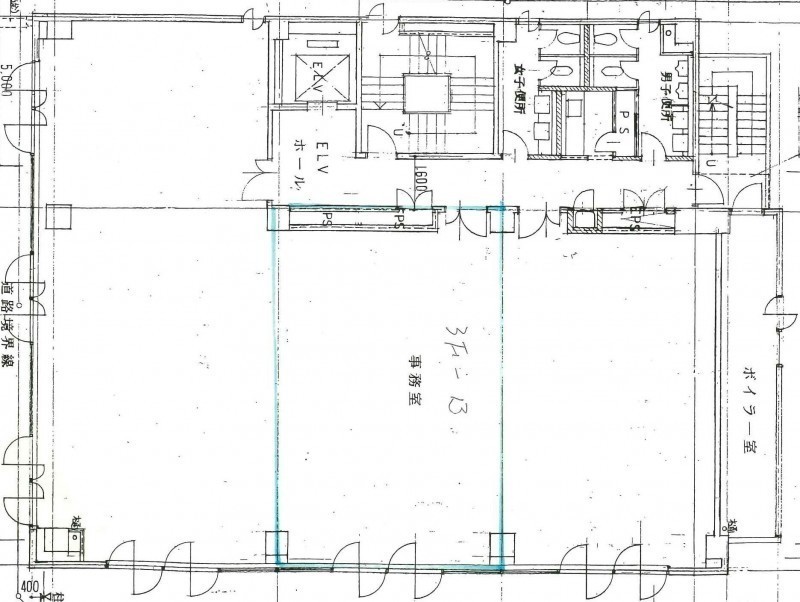
MY恵庭ビル 3F-B号室
ここに注目!恵庭市役所・銀行・郵便局・飲食店など近くのオフィスビルです。エレベーター付です。1Fに串鳥さんが入っております。道道46号線沿に面しております。現在駐車場1台敷地内に有、追加の場合については別途お探しとなります。
| 賃料・費用 |
14万1,768円
(+管理費等 4万7,256円)
坪単価:約6,600円/坪
敷128万8,800円礼なし仲14万1,768円
|
|---|---|
| 専有面積 | 71.02m² (21.48坪) |
| 住所 | 北海道恵庭市京町56-1・57・58・59・60 |
| 交通 | 恵庭駅(徒歩12分)道順を見る |
| 階/階建 | 3階 / 5階建 |
| 築年月 | 築34年(1991年5月) |
| 駐車場 |
あり (7,700円/台) 駐車可能台数:1台
|
空室確認、見学、詳細を知りたい方はこちら!
お電話の際は「連合隊の物件」とお伝えください。
情報掲載期限:あと8日(更新日 2025/11/23)
- 物件写真・概要
- 周辺地図
-
▼クリックで左の拡大画像が変わります。 すべての写真を拡大
空室確認、見学、詳細を知りたい方はこちら!
おすすめポイント
- 即入居可
- 幹線道路沿い
- 駐車場あり
- 出店するなら…この業種がおすすめ!
- 飲食全般(重飲食含む)

- 喫茶・カフェ(軽飲食)

- バー・クラブ・スナック

- 小売・物販

- 美容・健康・介護

- 医療

- 教育・スクール

- 事務所

- アミューズメント

交通色がついているアイコンをクリックすると、本物件までの道順を見ることができます。
物件概要
所在階/建物の階建 3階(B) / 地上5階建 主要採光面 南西 構造 鉄筋コンクリート(RC)造 間取り 契約期間 3年間 権利金 住宅保険 出店推奨業種 教育・スクール、事務所、その他 出店不可業種 用途地域 - 商業地域(建ぺい率:80% / 容積率:400%)
その他費用 毎月の費用 - ゴミ処理費:2,000円
引渡し 即時 管理人 巡回 取引態様 仲介 物件No 設備・特徴 - 幹線道路沿い
- エレベーター
- 照明器具付
- 灯油暖房
- 男女別トイレ(共用部)
備考 電気代・灯油代はメーター検針にて別途請求。駐車場現在空1台となります。(43番区画) 主な周辺施設色がついているアイコンをクリックすると、本物件までの道順を見ることができます。
-
ホームページはこちら
北海道知事 石狩(9) 第4586号
(株)アプコ・コーポレーション- 加入団体
- (公社)全日本不動産協会
- 保証協会
- (公社)不動産保証協会
- 公正取引協議会
- (一社)北海道不動産公正取引協議会
※連合隊は物件情報の精度向上に努めています:「物件情報に誤りがある」「成約済みである」などお気付きの点がございましたらこちらよりご連絡ください。
写真枚数:13枚
3F部分となります
エントランス
横の駐車場は現在、1台空となります。
エレベーター・自販機有ります。
共用部給湯室
共用部男子トイレ
共用部女子トイレ
恵庭市・千歳市近郊の住まい探しは不動産のアプコへ!
千歳市・安平町エリアの物件は千歳店0123‐24-2002へお問合せ下さい。 不動産無料査定及び不動産売却のご相談窓口を実施中!