向ケ丘テナント
ここに注目!江別市向ケ丘に、あなたの新しいビジネスを応援する貸店舗「向ケ丘テナント」がご紹介です!特に美容室や床屋さんなど、美容・健康・介護関連の事業にぴったりのワンルームタイプです。 周辺には銀行やコンビニ、郵便局が徒歩2分圏内に揃い、日常の利便性も良好。角地に位置しているため、お客様にも見つけていただきやすい立地です。 店内はエアコンと灯油暖房が完備されており、北海道の季節を問わず快適にお過ごしいただけます。男女別トイレや給排水設備も整っており、スムーズな事業開始をサポート。さらに、共用ながら10台分の無料駐車場をご用意しておりますので、お車で来店されるお客様も安心です。 初期費用を抑えられる礼金0円も魅力の一つ。この場所で、あなたの理想のビジネスをスタートさせてみませんか?
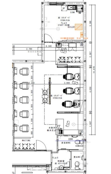
この物件は 美容室・床屋 の居抜き物件です。
現状の設備が残されたまま取引されるため、初期費用を抑え速やかに事業を開始できるメリットがあります。
| 賃料・費用 |
22万円
(+管理費等 -円)
敷120万円礼なし仲22万円
|
|---|---|
| 専有面積 | |
| 住所 | 北海道江別市向ケ丘20-15 |
| 交通 | 高砂駅(徒歩15分)道順を見る |
| 階/階建 | 1階 / 1階建 |
| 築年月 | |
| 駐車場 |
あり 駐車可能台数:10台
共用10台 |
空室確認、見学、詳細を知りたい方はこちら!
お電話の際は「連合隊の物件」とお伝えください。
情報掲載期限:あと28日(更新日 2026/3/2)
- 物件写真・概要
- 周辺地図
-
空室確認、見学、詳細を知りたい方はこちら!
おすすめポイント
- 幹線道路沿い
- 駐車2台以上可
- 出店するなら…この業種がおすすめ!
- 飲食全般(重飲食含む)

- 喫茶・カフェ(軽飲食)

- バー・クラブ・スナック

- 小売・物販

- 美容・健康・介護

- 医療

- 教育・スクール

- 事務所

- アミューズメント

交通色がついているアイコンをクリックすると、本物件までの道順を見ることができます。
物件概要
所在階/建物の階建 1階(1) / 地上1階建 主要採光面 北西 構造 木造 間取り ワンルーム 契約期間 5年間 権利金 住宅保険 出店推奨業種 美容・健康・介護 出店不可業種 居抜き情報 [美容室・床屋] の居抜き接道状況 角地 用途地域 - 準住居地域(建ぺい率:60% / 容積率:200%)
引渡し 相談 管理人 取引態様 仲介 物件No 設備・特徴 - 幹線道路沿い
- 給排水設備
- エアコン付
- 灯油暖房
- 男女別トイレ
備考 主な周辺施設色がついているアイコンをクリックすると、本物件までの道順を見ることができます。
-
※連合隊は物件情報の精度向上に努めています:「物件情報に誤りがある」「成約済みである」などお気付きの点がございましたらこちらよりご連絡ください。
写真枚数:2枚
江別市の不動産会社『不動産ショップきりん』です♪江別市の不動産のことは『きりん』にお任せください!!
当社では専門的な人材がお客様の悩みや問題を的確にお答えします!住み替えによる融資計画、賃貸住宅探し、任意売価、離婚等による財産分与問題など。宅建士・建築士・司法書士・税理士・土地家屋調査士が対応します