千歳メディカルビル3階
ここに注目!2階は耳鼻科。 スケルトン賃貸です。 飲食は不可。その他業種は相談。 ★JR千歳駅徒歩6分★
| 賃料・費用 |
44万円
(+管理費等 -円)
坪単価:約7,938円/坪
敷120万円礼なし仲44万円
|
|---|---|
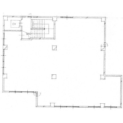
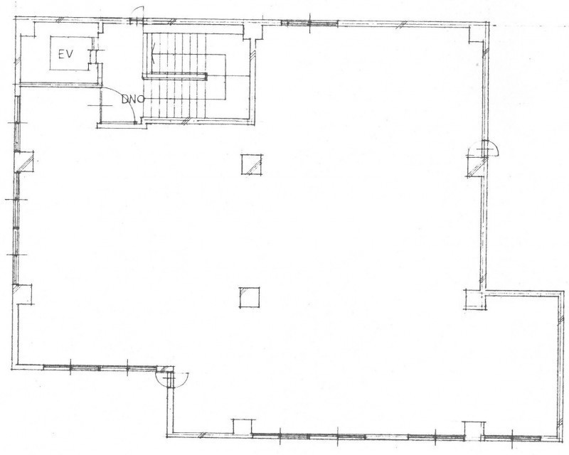
| 専有面積 | 183.26m² (55.43坪) |
| 住所 | 北海道千歳市千代田町4丁目18-1 |
| 交通 | 千歳駅(徒歩6分)道順を見る |
| 階/階建 | 路面 / 3階建 |
| 築年月 | 築36年(1989年8月) |
| 駐車場 |
なし
|
空室確認、見学、詳細を知りたい方はこちら!
お電話の際は「連合隊の物件」とお伝えください。
情報掲載期限:あと19日(更新日 2026/3/25)
- 物件写真・概要
- 周辺地図
-
空室確認、見学、詳細を知りたい方はこちら!
おすすめポイント
- 路面店
- 駅前立地
- 商店街に面す
- 幹線道路沿い
- スケルトン
- 出店するなら…この業種がおすすめ!
- 飲食全般(重飲食含む)

- 喫茶・カフェ(軽飲食)

- バー・クラブ・スナック

- 小売・物販

- 美容・健康・介護

- 医療

- 教育・スクール

- 事務所

- アミューズメント

※出店不可の業種:飲食全般、水商売、アミューズメント
交通色がついているアイコンをクリックすると、本物件までの道順を見ることができます。
物件概要
所在階/建物の階建 3階 / 地上3階建 主要採光面 南東 構造 鉄筋コンクリート(RC)造 間取り 契約期間 権利金 住宅保険 出店推奨業種 医療、事務所 出店不可業種 飲食全般、水商売、アミューズメント 引渡し 相談 管理人 無 取引態様 仲介 物件No 設備・特徴 - 駅前立地
- 商店街に面す
- 幹線道路沿い
- エレベーター
- スケルトン
- 路面店
備考 ※保証会社利用時は保証料・更新料が必要です。詳細はお問い合わせ下さい。 主な周辺施設色がついているアイコンをクリックすると、本物件までの道順を見ることができます。
-
ホームページはこちら
北海道知事 石狩(14) 第1961号
ピタットハウス千歳店 住まいの戸田(株)- 保証協会
- (公社)全国宅地建物取引業保証協会
- 公正取引協議会
- (一社)北海道不動産公正取引協議会
※連合隊は物件情報の精度向上に努めています:「物件情報に誤りがある」「成約済みである」などお気付きの点がございましたらこちらよりご連絡ください。
写真枚数:16枚
千歳・恵庭の不動産のことなら当社におまかせ下さい!これからも地域に密着した営業を行なっていきます。
2017年10月より「ピタットハウス千歳店」として営業しております。 千歳・恵庭はもちろん、全国のお部屋探しもお任せ下さい。 また、2020年4月より恵庭営業所を開設し「ピタットハウス恵庭店」として営業しております。千歳店共々よろしくお願い申し上げます。