事務所(区分)|テナント
押元町貸工場
| 賃料・費用 |
38万5,000円
(+管理費等 -円)
坪単価:約4,821円/坪
敷なし礼42万3,500円仲38万5,000円
保証金:127万500円/敷引・償却金:115万5,000円(3ヶ月)
|
|---|---|
| 専有面積 | 264m² (79.86坪) |
| 住所 | 愛知県名古屋市中川区押元町2丁目90-2 |
| 交通 | 荒子駅(徒歩13分)|南荒子駅(徒歩17分)|「太平通三丁目」停(徒歩5分) |
| 階/階建 | 1階 / 2階建 |
| 築年月 | 築36年(1990年1月) |
| 駐車場 |
駐車可能台数:5台
|
空室確認、見学、詳細を知りたい方はこちら!
お電話の際は「連合隊の物件」とお伝えください。
052-852-5110
情報掲載期限:あと25日(更新日 2026/4/12)
- 物件写真・概要
- 周辺地図
-
空室確認、見学、詳細を知りたい方はこちら!
おすすめポイント
- 即入居可
- エアコン付
交通色がついているアイコンをクリックすると、本物件までの道順を見ることができます。
- 荒子駅あおなみ線徒歩13分(約1000m)
- 南荒子駅あおなみ線徒歩17分(約1.4km)
- 「太平通三丁目」停徒歩5分
物件概要
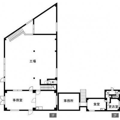
所在階/建物の階建 1階(工場) / 地上2階建 主要採光面 構造 鉄骨造 間取り 契約期間 2年間 権利金 住宅保険 2万円(1年間) 引渡し 即時 管理人 取引態様 仲介 物件No 設備・特徴 - エアコン付
- その他:公共下水・エアコン・上下水道・電気
備考 クレーン3台付、居抜き、工場事務所 主な周辺施設色がついているアイコンをクリックすると、本物件までの道順を見ることができます。
-
ホームページはこちら
愛知県知事 (4) 第21593号
店舗ステーション瑞穂店 (株)ビー・ハウス- 加入団体
- (公社)愛知県宅地建物取引業協会
- 保証協会
- (公社)全国宅地建物取引業保証協会
- 公正取引協議会
- 東海不動産公正取引協議会
※連合隊は物件情報の精度向上に努めています:「物件情報に誤りがある」「成約済みである」などお気付きの点がございましたらこちらよりご連絡ください。
写真枚数:10枚
名古屋南のテナント探しなら『店舗ステーション瑞穂店』へ 店舗・事務所・オフィス物件はお任せ下さい!
テナント物件は一点もの! 気になる物件が見つかったら、先ずはお気軽にお問い合わせ下さい☺ #名古屋 #テナント #店舗 #事務所 #オフィス #居抜き #事業用 #店舗ステーション #お部屋ステーション