駒止町2丁目倉庫
ここに注目!・ガスは引いてません。 ・現状渡しになります。 ・エレベーターは故障している為、使用出来ません。
| 賃料・費用 |
30万円
(+管理費等 -円)
坪単価:約5,060円/坪
敷なし礼なし仲30万円
保証金:99万円/敷引・償却金:30万円(1ヶ月)
|
|---|---|
| 専有面積 | 196m² (59.29坪) |
| 住所 | 愛知県名古屋市北区駒止町2丁目41 |
| 交通 | 黒川駅(徒歩8分) |
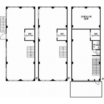
| 階/階建 | 1階 / 3階建 |
| 築年月 | 築52年(1973年5月) |
| 駐車場 |
あり (無料) 駐車可能台数:1台
|
空室確認、見学、詳細を知りたい方はこちら!
お電話の際は「連合隊の物件」とお伝えください。
情報掲載期限:あと29日(更新日 2025/12/29)
- 物件写真・概要
- 周辺地図
-
空室確認、見学、詳細を知りたい方はこちら!
おすすめポイント
- 即入居可
- 駐車場あり
- 敷金・礼金0円
交通色がついているアイコンをクリックすると、本物件までの道順を見ることができます。
物件概要
所在階/建物の階建 1階(倉庫) / 地上3階建 主要採光面 南 構造 鉄骨造 間取り 契約期間 2年間 権利金 住宅保険 その他費用 その他 - 契約事務手数料:1万3,200円
引渡し 即時 管理人 取引態様 仲介 物件No 設備・特徴 - その他:公共下水・上下水道・電気
備考 口座振替手数料 550円(月額) 倉庫 ・短期解約違約金1年未満で契約を解除・解約する場合、違約金として賃料の2ヶ月、1年以上2年未満の場合、賃料の1ヶ月分を支払うものとする。 ・24時間使用する事務所は応相談(基本的には24時間使用は不可) ・現状渡しになります。 ・ガスは引いておりません。 ・エレベーターは動かない為、使用不可になります。 ・音が響く使用での事務所やテナントは不可(ご相談下さい。) 主な周辺施設色がついているアイコンをクリックすると、本物件までの道順を見ることができます。
-
ホームページはこちら
愛知県知事 (4) 第21593号
店舗ステーション瑞穂店 (株)ビー・ハウス- 加入団体
- (公社)愛知県宅地建物取引業協会
- 保証協会
- (公社)全国宅地建物取引業保証協会
- 公正取引協議会
- 東海不動産公正取引協議会
※連合隊は物件情報の精度向上に努めています:「物件情報に誤りがある」「成約済みである」などお気付きの点がございましたらこちらよりご連絡ください。
写真枚数:15枚
名古屋南のテナント探しなら『店舗ステーション瑞穂店』へ 店舗・事務所・オフィス物件はお任せ下さい!
テナント物件は一点もの! 気になる物件が見つかったら、先ずはお気軽にお問い合わせ下さい☺ #名古屋 #テナント #店舗 #事務所 #オフィス #居抜き #事業用 #店舗ステーション #お部屋ステーション