店舗・事務所(区分)|テナント
ルハミスビル
| 賃料・費用 |
22万円
(+管理費等 1万6,500円)
坪単価:約9,696円/坪
敷なし礼22万円(1ヶ月)仲22万円
保証金:66万円(3ヶ月)
|
|---|---|
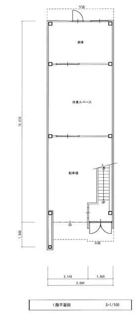
| 専有面積 | 75.04m² (22.69坪) |
| 住所 | 愛知県名古屋市昭和区白金2丁目10-18 |
| 交通 | 金山駅(徒歩16分)|東別院駅(徒歩19分) |
| 階/階建 | 路面 / 3階建 |
| 築年月 | 築39年(1986年9月) |
| 駐車場 |
なし
|
空室確認、見学、詳細を知りたい方はこちら!
お電話の際は「連合隊の物件」とお伝えください。
052-852-5110
情報掲載期限:あと24日(更新日 2025/12/21)
- 物件写真・概要
- 周辺地図
-
空室確認、見学、詳細を知りたい方はこちら!
おすすめポイント
- 路面店
交通色がついているアイコンをクリックすると、本物件までの道順を見ることができます。
物件概要
所在階/建物の階建 1階(1F) / 地上3階建 主要採光面 構造 鉄骨造 間取り 契約期間 2年間 権利金 住宅保険 出店推奨業種 出店不可業種 引渡し 相談 管理人 取引態様 仲介 物件No 設備・特徴 - 路面店
- その他:都市ガス・公共下水・上下水道・電気
備考 店舗・事務所 -
ホームページはこちら
愛知県知事 (4) 第21593号
店舗ステーション瑞穂店 (株)ビー・ハウス- 加入団体
- (公社)愛知県宅地建物取引業協会
- 保証協会
- (公社)全国宅地建物取引業保証協会
- 公正取引協議会
- 東海不動産公正取引協議会
※連合隊は物件情報の精度向上に努めています:「物件情報に誤りがある」「成約済みである」などお気付きの点がございましたらこちらよりご連絡ください。
写真枚数:8枚
名古屋南のテナント探しなら『店舗ステーション瑞穂店』へ 店舗・事務所・オフィス物件はお任せ下さい!
テナント物件は一点もの! 気になる物件が見つかったら、先ずはお気軽にお問い合わせ下さい☺ #名古屋 #テナント #店舗 #事務所 #オフィス #居抜き #事業用 #店舗ステーション #お部屋ステーション