清田テナント事務所
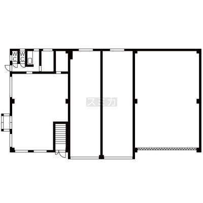
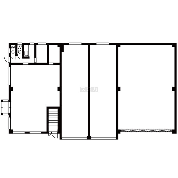
ここに注目!○ 事務所部分 90.72㎡(27.44坪) 倉庫・車庫109.34㎡(33.07坪)高さ約5mあり 電動シャッター付の他に 屋根付き車庫109.34㎡(33.07)もあります。事務所部分90.72㎡ 倉庫・車庫+開放車庫併せて218.70㎡ ○ 当該物件対象は事務所1階部分と隣接するシャッターのついている倉庫・車庫及びその奥にある屋根付き車庫になります。駐車台数等ご相談ください。なお、現地案内写真撮影などを行う場合、弊社へ一言ご連絡をくださいますようお願いいたします。無断駐車等で苦情が入っておりますのでご理解いただきますようお願いいたします。
| 賃料・費用 |
44万円
(+管理費等 なし)
坪単価:約4,701円/坪
敷80万円礼なし仲22万円
|
|---|---|
| 専有面積 | 309.48m² (93.61坪) |
| 住所 | 北海道札幌市清田区清田二条3丁目3-1 |
| 交通 | 南郷18丁目駅(徒歩44分)|福住駅(徒歩45分)|中央バス 「清田団地入口」停(徒歩1分)道順を見る |
| 階/階建 | 1階 / 2階建 |
| 築年月 | 築32年(1993年9月) |
| 駐車場 |
あり 駐車可能台数:4台
|
空室確認、見学、詳細を知りたい方はこちら!
お電話の際は「連合隊の物件」とお伝えください。
新着 情報掲載期限:あと26日(更新日 2026/4/27)
- 物件写真・概要
- 周辺地図
-
空室確認、見学、詳細を知りたい方はこちら!
おすすめポイント
- 即入居可
- 駐車2台以上可
交通色がついているアイコンをクリックすると、本物件までの道順を見ることができます。
- 南郷18丁目駅札幌市営地下鉄東西線徒歩44分(約3.5km)
- 福住駅札幌市営地下鉄東豊線徒歩45分(約3.6km)
- 中央バス 「清田団地入口」停徒歩1分
物件概要
所在階/建物の階建 1階 / 地上2階建 主要採光面 構造 鉄骨造 間取り 契約期間 3年間 権利金 住宅保険 出店推奨業種 出店不可業種 その他費用 一時金 - 契約事務手数料:1万1,000円
引渡し 即時 管理人 巡回 取引態様 仲介 物件No sumika- 5695 設備・特徴 備考 主な周辺施設色がついているアイコンをクリックすると、本物件までの道順を見ることができます。
-
ホームページはこちら
北海道知事 石狩(3) 第7822号
(株)スミカ〒001-0013
TEL:011-700-1114
FAX:011-700-1116
営業時間:9:00~19:00
定休日:毎週 日曜・祝日
- 加入団体
- (公社)北海道宅地建物取引業協会
- 保証協会
- (公社)全国宅地建物取引業保証協会
- 公正取引協議会
- (一社)北海道不動産公正取引協議会
※連合隊は物件情報の精度向上に努めています:「物件情報に誤りがある」「成約済みである」などお気付きの点がございましたらこちらよりご連絡ください。
写真枚数:11枚
4月の定休日は25、26、29日です。28日は17:00までの営業です。GW休暇は5月2日~6日、4月30日・5月1日は通常営業、5月7日から通常営業です。クレジットカードでのお支払いも可能です。
◯弊社より約150㎞圏内の道内主要都市【西は伊達、壮瞥町・北は旭川周辺・東は芽室音更近郊・日高は静内周辺】までは賃貸、売買問わずご案内や無料査定に参ります。お気軽にお声がけねがいます。一昨年は千歳市幸町飲食ビル内スナック店舗4件ご仲介・昨年は千歳市末広三丁目大型売土地ご成約・本年2月に旭川永山10条倉庫もご成約いただきました。数年前には滝川や苫小牧のアパート売却も成功済・弊社企業理念は「地方創生」