新琴似1-10戸建て
ここに注目!内装中。ペット相談、外国人契約可能、事務所利用可能、子供可、高齢者入居可能、保証会社利用必須、DIY可能
| 賃料・費用 |
11万円(+管理費等 -円)
敷11万円(1ヶ月)礼なし仲12万1,000円
|
|---|---|
| 間取・専有 |
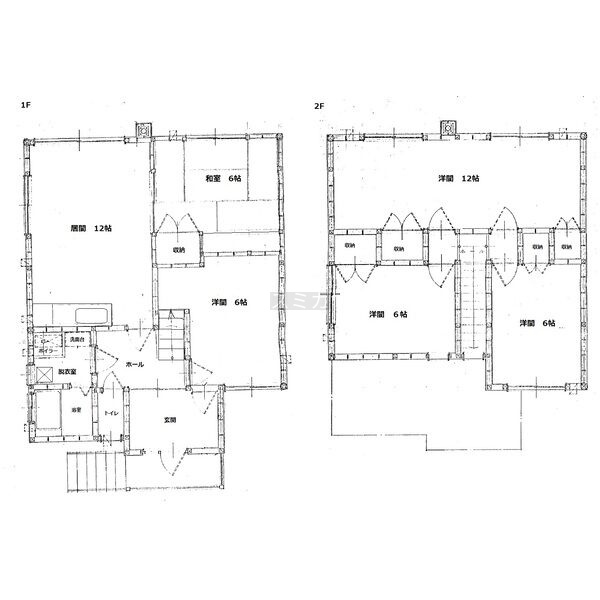
5LDK(108.13m²)└ LDK12帖 洋室6帖 洋室6帖 洋室6帖 和室6帖 洋室12帖
|
| 住所 | 北海道札幌市北区新琴似一条 (詳細非公開) |
| 交通 | 新川駅(徒歩19分)|中央バス 「新琴似2条10丁目」停(徒歩4分) |
| 築年月 | 築39年(1986年11月) |
| 駐車場 |
あり 駐車可能台数:2台
車種によって2~3台駐車可能(建物向かって左側・縦列になります。) |
空室確認、見学、詳細を知りたい方はこちら!
お電話の際は「連合隊の物件」とお伝えください。
情報掲載期限:あと24日(更新日 2025/12/17)
- 物件写真・概要
- 周辺地図
-
空室確認、見学、詳細を知りたい方はこちら!
おすすめポイント
- オール電化
- 南向き
- 角地
- 都市ガス
- 車庫あり
- 駐車2台以上可
- エアコン付
- 平屋
- 追い焚き風呂
- ペット相談可
- リフォーム済み
- 敷金・礼金0円
- 近くて便利!徒歩5分以内にある施設
- 3分
3分- 5分
5分
交通
- 新川駅JR札沼線徒歩19分(約1.6km)
- 中央バス 「新琴似2条10丁目」停徒歩4分
物件概要
建物の階建 地上2階建 主要採光面 構造 木造 契約期間 2年間 住宅保険 3万5,000円(2年間) その他費用 毎月の費用 - 24時間管理費:1,650円
一時金 - 室内清掃費用:8万8,000円
入居可能時期 相談 管理人 巡回 取引態様 仲介 物件No sumika- 5591 設備・特徴 - バス/トイレ別
- 温水洗浄トイレ
- 室内洗濯機置場
- 灯油暖房
- 納戸・トランクルーム
- LPガス
- ペット相談可
- 事務所可
- シニア相談可
備考 家賃発生日の交渉可、」建物前面は月極駐車場として利用中です。 学区
- 札幌市立新光小学校約828m(徒歩11分)
- 札幌市立新琴似南小学校約966m(徒歩13分)
- 札幌市立光陽中学校約1.2km(徒歩15分)
- 札幌市立新川中学校約1.4km(徒歩18分)
主な周辺施設
- ファッションセンターしまむら新琴似店約158m(徒歩2分)
- ツルハドラッグ新琴似1条店約213m(徒歩3分)
- ビバホーム新琴似店約278m(徒歩4分)
- サツドラ新琴似店約373m(徒歩5分)
- 札幌市新琴似・新川地区センター図書室約357m(徒歩5分)
- マクドナルド新琴似店約372m(徒歩5分)
- はま寿司札幌新琴似店約492m(徒歩7分)
- 札幌新琴似一条郵便局約421m(徒歩6分)
- サンキクロスモール新琴似店約685m(徒歩9分)
- MEGAドン・キホーテ新川店約647m(徒歩9分)
-
ホームページはこちら
北海道知事 石狩(3) 第7822号
(株)スミカ〒001-0013
TEL:011-700-1114
FAX:011-700-1116
営業時間:9:00~19:00
定休日:毎週 日曜・祝日
- 加入団体
- (公社)北海道宅地建物取引業協会
- 保証協会
- (公社)全国宅地建物取引業保証協会
- 公正取引協議会
- (一社)北海道不動産公正取引協議会
※連合隊は物件情報の精度向上に努めています:「物件情報に誤りがある」「成約済みである」などお気付きの点がございましたらこちらよりご連絡ください。
写真枚数:2枚
12月の定休日は6、7、14、20、21日となります。5日(金)は研修会の為午後5時まで、27(土)は12時までの営業とさせていただきます。年末年始休暇は28日~1月4日となります。
クレジットカードでのお支払いも可能です(ボーナス払いも可)基本現地集合でご内見ですが、最寄りの駅までお迎えも可能です。随時、新規情報をUPして参りますのでお付き合いくださいませ。→【札幌市 スミカ 不動産】で検索願います 昨今、分譲マンションの修繕積立金改定に伴うご相談が急増しておりますので、お気軽にお声がけねがいます・ゴミや不用品を残したままでの不動産売買、ご処分も大歓迎でございます