小幡太田316GIMUCOC棟
ここに注目!玄関の鍵は防犯性の高いディンプルキータイプとなっております。室内設備はエアコン3台・冷房など充実した設備を備え付けています。便利な場所に位置している好立地。飲食不可の為、入居前にご確認お願いします。
| 賃料・費用 |
39万9,000円
(+管理費等 -円)
坪単価:約6,633円/坪
敷なし礼19万9,000円仲39万9,000円
保証金:119万7,000円(3ヶ月)/敷引・償却金:39万9,000円(1ヶ月)
|
|---|---|
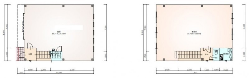
| 専有面積 | 198.88m² (60.16坪) |
| 住所 | 愛知県名古屋市守山区小幡太田316 |
| 交通 | 小幡駅(徒歩13分)|茶屋ヶ坂駅(徒歩26分)|金屋駅(徒歩34分) |
| 階/階建 | 2階建 |
| 築年月 | 新築(2025年3月) |
| 駐車場 |
あり (無料) 駐車可能台数:5台
|
空室確認、見学、詳細を知りたい方はこちら!
お電話の際は「連合隊の物件」とお伝えください。
情報掲載期限:あと25日(更新日 2025/12/18)
- 物件写真・概要
- 周辺地図
-
▼クリックで左の拡大画像が変わります。 すべての写真を拡大
空室確認、見学、詳細を知りたい方はこちら!
おすすめポイント
- 即入居可
- 駐車2台以上可
- 複数路線利用可
交通色がついているアイコンをクリックすると、本物件までの道順を見ることができます。
物件概要
所在階/建物の階建 0000C / 地上2階建 主要採光面 構造 鉄骨造 間取り 契約期間 2年間 更新料/更新手数料 3万3,000円 権利金 住宅保険 出店推奨業種 出店不可業種 引渡し 即時 管理人 取引態様 仲介 物件No 設備・特徴 - エアコン付
- 複数路線利用可
- その他:IHヒーター・公共下水・エアコン・TVインターホン・上下水道・電気
備考 口座振替手数料 330円(月額) 倉庫 地勢:平坦 -
愛知県知事 (3) 第21933号
店舗ステーション名古屋 (株)お部屋ステーション- 加入団体
- (公社)愛知県宅地建物取引業協会
- 保証協会
- (公社)不動産保証協会
※連合隊は物件情報の精度向上に努めています:「物件情報に誤りがある」「成約済みである」などお気付きの点がございましたらこちらよりご連絡ください。
写真枚数:12枚
外はこのようになっています
きれいなキッチンです
コンパクトで使いやすいトイレです
中はこのようになっています
明るい室内です
名古屋のテナント探しなら『店舗ステーション名古屋店』へ 店舗・事務所・オフィス物件はお任せ下さい!
テナント物件は一点もの! 気になる物件を見つけたら、お気軽にお問い合わせ下さい♪☺ #名古屋 #店舗 #テナント #事務所 #オフィス #居抜き #事業用 #店舗ステーション #お部屋ステーション