HARVEY TERRACE丸の内
ここに注目!軽飲食入居可能なので、是非ご相談下さい。IT向けに造られているので商業施設が多くありますよ。事業主様にご好評の、物販向け物件です。
| 賃料・費用 |
18万5,000円
(+管理費等 4万4,000円)
坪単価:約1.5万円/坪
礼18万5,000円(1ヶ月)仲18万5,000円
保証金:18万5,000円(1ヶ月)/敷引・償却金:18万5,000円(1ヶ月)
|
|---|---|
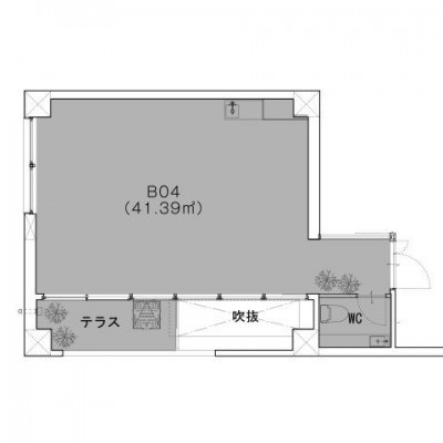
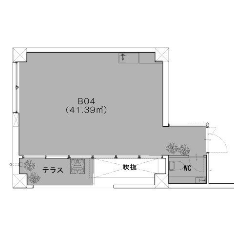
| 専有面積 | 41.39m² (12.52坪) |
| 住所 | 愛知県名古屋市中区丸の内2丁目1510 |
| 交通 | 丸の内駅(徒歩3分) |
| 階/階建 | 4階 |
| 築年月 | 新築(2025年12月) |
| 駐車場 |
なし
|
空室確認、見学、詳細を知りたい方はこちら!
お電話の際は「連合隊の物件」とお伝えください。
情報掲載期限:あと22日(更新日 2025/12/8)
- 物件写真・概要
- 周辺地図
-
空室確認、見学、詳細を知りたい方はこちら!
おすすめポイント
- 駅徒歩3分以内
- エアコン付
交通色がついているアイコンをクリックすると、本物件までの道順を見ることができます。
物件概要
所在階/建物の階建 4階(B04) 主要採光面 構造 鉄筋コンクリート(RC)造 間取り バルコニー - ウッドデッキ・テラス
契約期間 2年間 権利金 住宅保険 出店推奨業種 出店不可業種 土地面積 (公簿)引渡し 2025年12月中旬 管理人 取引態様 仲介 物件No 設備・特徴 - エアコン付
- 照明器具付
- その他:公共下水・エアコン・防犯カメラ・照明・エレベーター・上下水道・電気
備考 店舗・事務所 -
※連合隊は物件情報の精度向上に努めています:「物件情報に誤りがある」「成約済みである」などお気付きの点がございましたらこちらよりご連絡ください。
写真枚数:20枚
外観パースです
名古屋のテナント探しなら『店舗ステーション名古屋店』へ 店舗・事務所・オフィス物件はお任せ下さい!
テナント物件は一点もの! 気になる物件を見つけたら、お気軽にお問い合わせ下さい♪☺ #名古屋 #店舗 #テナント #事務所 #オフィス #居抜き #事業用 #店舗ステーション #お部屋ステーション