守牧町51GIMUCO
ここに注目!周辺に2駅あるので電車通勤しやすいです。室内設備はエアコン2台・24時間換気システムなど豊富に揃っており、過ごしやすいお部屋になっております。店舗移転におススメですが、重飲食不可です。
| 賃料・費用 |
33万円
(+管理費等 -円)
坪単価:約7,332円/坪
敷99万円(3ヶ月)礼66万円(2ヶ月)仲33万円
敷引・償却金:33万円(1ヶ月)
|
|---|---|
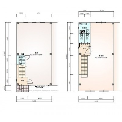
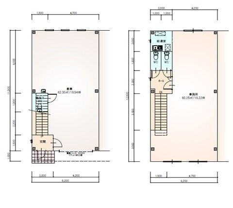
| 専有面積 | 148.8m² (45.01坪) |
| 住所 | 愛知県名古屋市守山区守牧町51 |
| 交通 | 金屋駅(徒歩5分)|守山駅(徒歩12分)|新守山駅(徒歩12分) |
| 階/階建 | 2階建 |
| 築年月 | 新築(2026年2月) |
| 駐車場 |
あり (無料)
|
空室確認、見学、詳細を知りたい方はこちら!
お電話の際は「連合隊の物件」とお伝えください。
情報掲載期限:あと23日(更新日 2026/2/26)
- 物件写真・概要
- 周辺地図
-
▼クリックで左の拡大画像が変わります。 すべての写真を拡大
空室確認、見学、詳細を知りたい方はこちら!
おすすめポイント
- 駅徒歩5分以内
- 複数路線利用可
- 駐車場あり
- エアコン付
- OAフロア
交通色がついているアイコンをクリックすると、本物件までの道順を見ることができます。
物件概要
所在階/建物の階建 0000B / 地上2階建 主要採光面 構造 鉄骨造 間取り 契約期間 2年間 更新料/更新手数料 3万3,000円 権利金 住宅保険 引渡し 2026年3月1日 管理人 取引態様 仲介 物件No 設備・特徴 - エアコン付
- 複数路線利用可
- OAフロア
- その他:IHヒーター・公共下水・エアコン・TVインターホン・24H換気・上下水道・電気
備考 口座振替手数料 330円(月額) 事務所 地勢:平坦 -
愛知県知事 (3) 第21933号
店舗ステーション名古屋 (株)お部屋ステーション- 加入団体
- (公社)愛知県宅地建物取引業協会
- 保証協会
- (公社)不動産保証協会
※連合隊は物件情報の精度向上に努めています:「物件情報に誤りがある」「成約済みである」などお気付きの点がございましたらこちらよりご連絡ください。
写真枚数:9枚
参考写真のため現況を優先します。
参考写真のため現況を優先します。
参考写真のため現況を優先します。
参考写真のため現況を優先します。
参考写真のため現況を優先します。
参考写真のため現況を優先します。
参考写真のため現況を優先します。
名古屋のテナント探しなら『店舗ステーション名古屋店』へ 店舗・事務所・オフィス物件はお任せ下さい!
テナント物件は一点もの! 気になる物件を見つけたら、お気軽にお問い合わせ下さい♪☺ #名古屋 #店舗 #テナント #事務所 #オフィス #居抜き #事業用 #店舗ステーション #お部屋ステーション