店舗(区分)|テナント
グランデ神宮前中駒ビル3階
| 賃料・費用 |
66万4,668円
(+管理費等 22万9,196円)
坪単価:約6,381円/坪
敷なし礼なし仲74万9,905円
保証金:362万5,464円
|
|---|---|
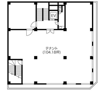
| 専有面積 | 344.39m² (104.17坪) |
| 住所 | 愛知県名古屋市熱田区森後町7-10 |
| 交通 | 熱田神宮西駅(徒歩3分)|熱田駅(徒歩6分)|神宮前駅(徒歩12分) |
| 階/階建 | 3階 / 11階建 |
| 築年月 | 築56年(1970年1月) |
| 駐車場 |
無料
|
空室確認、見学、詳細を知りたい方はこちら!
お電話の際は「連合隊の物件」とお伝えください。
052-838-9558
店舗ステーション名古屋 (株)お部屋ステーション
情報掲載期限:あと29日(更新日 2026/2/26)
- 物件写真・概要
- 周辺地図
-
空室確認、見学、詳細を知りたい方はこちら!
おすすめポイント
- 駅徒歩3分以内
- 複数路線利用可
- 敷金・礼金0円
交通色がついているアイコンをクリックすると、本物件までの道順を見ることができます。
物件概要
所在階/建物の階建 3階(3階) / 地上11階建 主要採光面 構造 鉄骨鉄筋コンクリート(SRC)造 間取り 契約期間 2年間 権利金 住宅保険 出店推奨業種 出店不可業種 引渡し 相談 管理人 取引態様 仲介 物件No 設備・特徴 - 都市ガス
- エレベーター
- 複数路線利用可
備考 店舗 -
愛知県知事 (3) 第21933号
店舗ステーション名古屋 (株)お部屋ステーション- 加入団体
- (公社)愛知県宅地建物取引業協会
- 保証協会
- (公社)不動産保証協会
※連合隊は物件情報の精度向上に努めています:「物件情報に誤りがある」「成約済みである」などお気付きの点がございましたらこちらよりご連絡ください。
写真枚数:20枚
名古屋のテナント探しなら『店舗ステーション名古屋店』へ 店舗・事務所・オフィス物件はお任せ下さい!
テナント物件は一点もの! 気になる物件を見つけたら、お気軽にお問い合わせ下さい♪☺ #名古屋 #店舗 #テナント #事務所 #オフィス #居抜き #事業用 #店舗ステーション #お部屋ステーション