事務所(区分)|テナント
ナカトウ丸の内ビル7E
| 賃料・費用 |
35万4,420円
(+管理費等 11万8,140円)
坪単価:約9,900円/坪
敷257万7,600円礼なし仲35万4,420円
|
|---|---|
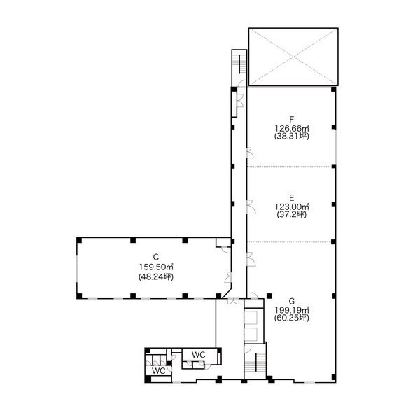
| 専有面積 | 118.35m² (35.8坪) |
| 住所 | 愛知県名古屋市中区丸の内3丁目17-6 |
| 交通 | 久屋大通駅(徒歩5分)|栄駅(徒歩11分)|丸の内駅(徒歩11分) |
| 階/階建 | 7階 / 8階建 |
| 築年月 | 築33年(1992年2月) |
| 駐車場 |
あり (無料)
|
空室確認、見学、詳細を知りたい方はこちら!
お電話の際は「連合隊の物件」とお伝えください。
052-838-9558
店舗ステーション名古屋 (株)お部屋ステーション
情報掲載期限:あと28日(更新日 2025/12/23)
- 物件写真・概要
- 周辺地図
-
空室確認、見学、詳細を知りたい方はこちら!
おすすめポイント
- 駅徒歩5分以内
- 複数路線利用可
- 駐車場あり
交通色がついているアイコンをクリックすると、本物件までの道順を見ることができます。
- 久屋大通駅名古屋市営地下鉄桜通線、名古屋市営地下鉄名城線徒歩5分(約400m)
- 栄駅名古屋市営地下鉄名城線、名古屋市営地下鉄東山線、名鉄瀬戸線徒歩11分(約900m)
- 丸の内駅名古屋市営地下鉄桜通線、名古屋市営地下鉄鶴舞線徒歩11分(約900m)
物件概要
所在階/建物の階建 7階(7E) / 地上8階建 主要採光面 構造 鉄骨造 間取り 契約期間 2年間 権利金 住宅保険 引渡し 2025年11月1日 管理人 取引態様 仲介 物件No 設備・特徴 - 照明器具付
- エレベーター
- 複数路線利用可
備考 事務所 -
愛知県知事 (3) 第21933号
店舗ステーション名古屋 (株)お部屋ステーション- 加入団体
- (公社)愛知県宅地建物取引業協会
- 保証協会
- (公社)不動産保証協会
※連合隊は物件情報の精度向上に努めています:「物件情報に誤りがある」「成約済みである」などお気付きの点がございましたらこちらよりご連絡ください。
写真枚数:14枚
名古屋のテナント探しなら『店舗ステーション名古屋店』へ 店舗・事務所・オフィス物件はお任せ下さい!
テナント物件は一点もの! 気になる物件を見つけたら、お気軽にお問い合わせ下さい♪☺ #名古屋 #店舗 #テナント #事務所 #オフィス #居抜き #事業用 #店舗ステーション #お部屋ステーション