店舗(区分)|テナント
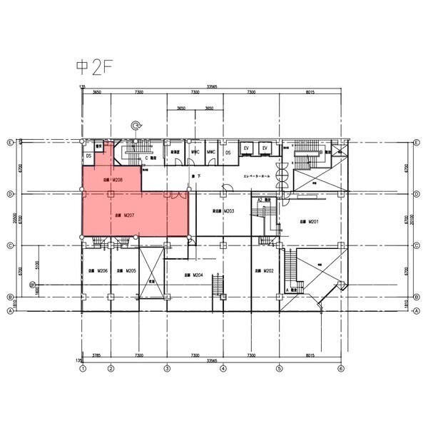
中央広小路ビルM207-M208
| 賃料・費用 |
60万5,264円
(+管理費等 13万2,402円)
坪単価:約1.8万円/坪
礼なし仲60万5,264円
保証金:363万1,584円(6ヶ月)
|
|---|---|
| 専有面積 | 113.67m² (34.38坪) |
| 住所 | 愛知県名古屋市中区錦3丁目21-18 |
| 交通 | 栄駅(徒歩8分)|伏見駅(徒歩8分)|丸の内駅(徒歩12分) |
| 階/階建 | 2階 / 5階建 |
| 築年月 | 築65年(1960年7月) |
| 駐車場 |
無料
|
空室確認、見学、詳細を知りたい方はこちら!
お電話の際は「連合隊の物件」とお伝えください。
052-838-9558
店舗ステーション名古屋 (株)お部屋ステーション
情報掲載期限:あと29日(更新日 2025/12/23)
- 物件写真・概要
- 周辺地図
-
空室確認、見学、詳細を知りたい方はこちら!
おすすめポイント
- 即入居可
- 複数路線利用可
交通色がついているアイコンをクリックすると、本物件までの道順を見ることができます。
- 栄駅名古屋市営地下鉄名城線、名古屋市営地下鉄東山線、名鉄瀬戸線徒歩8分(約600m)
- 伏見駅名古屋市営地下鉄鶴舞線、名古屋市営地下鉄東山線徒歩8分(約600m)
- 丸の内駅名古屋市営地下鉄桜通線、名古屋市営地下鉄鶴舞線徒歩12分(約1000m)
物件概要
所在階/建物の階建 2階(M207-M208) / 地上5階建 主要採光面 西 構造 鉄骨鉄筋コンクリート(SRC)造 間取り 契約期間 2030年12月 権利金 住宅保険 出店推奨業種 出店不可業種 引渡し 即時 管理人 取引態様 仲介 物件No 設備・特徴 - 複数路線利用可
備考 店舗 -
愛知県知事 (3) 第21933号
店舗ステーション名古屋 (株)お部屋ステーション- 加入団体
- (公社)愛知県宅地建物取引業協会
- 保証協会
- (公社)不動産保証協会
※連合隊は物件情報の精度向上に努めています:「物件情報に誤りがある」「成約済みである」などお気付きの点がございましたらこちらよりご連絡ください。
写真枚数:13枚
名古屋のテナント探しなら『店舗ステーション名古屋店』へ 店舗・事務所・オフィス物件はお任せ下さい!
テナント物件は一点もの! 気になる物件を見つけたら、お気軽にお問い合わせ下さい♪☺ #名古屋 #店舗 #テナント #事務所 #オフィス #居抜き #事業用 #店舗ステーション #お部屋ステーション