倉庫・工場|テナント
駒止町2丁目倉庫倉庫
| 賃料・費用 |
30万円
(+管理費等 -円)
坪単価:約5,060円/坪
礼なし仲30万円
保証金:90万円(3ヶ月)
|
|---|---|
| 専有面積 | 196m² (59.29坪) |
| 住所 | 愛知県名古屋市北区駒止町2丁目41 |
| 交通 | 黒川駅(徒歩8分)|名城公園駅(徒歩14分)|浄心駅(徒歩25分) |
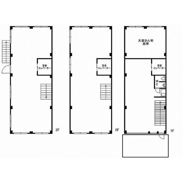
| 階/階建 | 3階建 |
| 築年月 | 築53年(1973年5月) |
| 駐車場 |
あり (無料)
|
空室確認、見学、詳細を知りたい方はこちら!
お電話の際は「連合隊の物件」とお伝えください。
052-838-9558
店舗ステーション名古屋 (株)お部屋ステーション
情報掲載期限:あと22日(更新日 2026/4/23)
- 物件写真・概要
- 周辺地図
-
空室確認、見学、詳細を知りたい方はこちら!
おすすめポイント
- 即入居可
- 駐車場あり
- 複数路線利用可
交通色がついているアイコンをクリックすると、本物件までの道順を見ることができます。
物件概要
所在階/建物の階建 倉庫 / 地上3階建 主要採光面 南 構造 鉄骨造 間取り 契約期間 2年間 権利金 住宅保険 出店推奨業種 出店不可業種 引渡し 即時 管理人 取引態様 仲介 物件No 設備・特徴 - 複数路線利用可
備考 倉庫 -
愛知県知事 (3) 第21933号
店舗ステーション名古屋 (株)お部屋ステーション- 加入団体
- (公社)愛知県宅地建物取引業協会
- 保証協会
- (公社)不動産保証協会
※連合隊は物件情報の精度向上に努めています:「物件情報に誤りがある」「成約済みである」などお気付きの点がございましたらこちらよりご連絡ください。
写真枚数:17枚
名古屋のテナント探しなら『店舗ステーション名古屋店』へ 店舗・事務所・オフィス物件はお任せ下さい!
テナント物件は一点もの! 気になる物件を見つけたら、お気軽にお問い合わせ下さい♪☺ #名古屋 #店舗 #テナント #事務所 #オフィス #居抜き #事業用 #店舗ステーション #お部屋ステーション