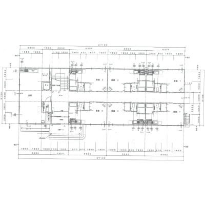
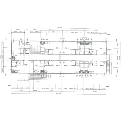
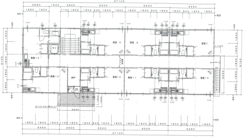
桔梗2丁目下宿仕様物件(一棟貸し)
ここに注目!函館市桔梗に、新たなコミュニティの拠点となる可能性を秘めた一棟貸し下宿仕様物件のご紹介です。こちらはワンルームが全14戸あり、共同で利用できる食堂スペースも完備。下宿や社宅、社員寮、さらには高齢者向け施設としても幅広くご活用いただけます。 函館バス「南桔梗」停まで徒歩2分とアクセス良好。徒歩3分圏内にはコンビニやドラッグストアがあり、日々の生活に大変便利です。敷地内には5~8台駐車可能な無料駐車場もございます。 各居室はバス・トイレ別で、IHクッキングヒーターやガス暖房、全居室収納、照明器具付きと設備も充実。玄関スロープやエレベーター付きのバリアフリー設計です。快適な生活をサポートする環境が整っています。 この機会に、皆様の新しい事業や生活の場として、ぜひご検討ください。
| 賃料・費用 |
49万5,000円(+管理費等 -円)
礼49万5,000円(1ヶ月)仲49万5,000円
|
|---|---|
| 間取・専有 |
ワンルーム
|
| 住所 | 北海道函館市桔梗2-38-8 |
| 交通 | 函館バス 「南桔梗」停(徒歩2分) |
| 築年月 | 築19年(2007年4月) |
| 駐車場 |
あり 駐車可能台数:3台
敷地内5~8台程度駐車可能(詳細は現地をご確認下さい) |
空室確認、見学、詳細を知りたい方はこちら!
お電話の際は「連合隊の物件」とお伝えください。
新着 情報掲載期限:あと29日(更新日 2026/4/8)
- 物件写真・概要
- 周辺地図
-
空室確認、見学、詳細を知りたい方はこちら!
おすすめポイント
- バス/トイレ別
- オートロック
- 2階以上
- 都市ガス
- 室内洗濯機置場
- 駐車2台以上可
- エアコン付
- 独立洗面台
- 追い焚き風呂
- ペット相談可
- デザイナーズ
- 敷金・礼金0円
- 近くて便利!徒歩5分以内にある施設
- 3分
3分- 3分
3分- 周辺施設を地図で確認
交通
- 函館バス 「南桔梗」停徒歩2分(約130m)
物件概要
所在階/建物の階建 地上2階建 総戸数 14戸 主要採光面 構造 鉄骨造 契約期間 住宅保険 入居可能時期 相談 管理人 取引態様 仲介 物件No 設備・特徴 - バリアフリー
- フローリング
- 照明器具付
- 全居室収納あり
- バス/トイレ別
- IHクッキングヒーター
- LPガス
- ガス暖房
備考 ■大型物件・一棟貸し(令和8年3月までサービス付き高齢者住宅として使用) ■ワンルーム×14戸+共同食堂スペース ■下宿・社宅・社員寮・高齢者向け施設等に適しています 学区色がついているアイコンをクリックすると、本物件までの道順を見ることができます。
主な周辺施設色がついているアイコンをクリックすると、本物件までの道順を見ることができます。
-
ホームページはこちら
北海道知事 渡島(8) 第836号
(株)協同振興サービス
※連合隊は物件情報の精度向上に努めています:「物件情報に誤りがある」「成約済みである」などお気付きの点がございましたらこちらよりご連絡ください。
写真枚数:23枚
当社は、JA函館市亀田(農協)の不動産部門です。 気になる物件がございましたら、電話やメールにてお気軽にお問い合わせ下さい (^〇^)/