R-fino 本郷通
ここに注目!新しい暮らしを始めてみませんか?築浅のデザイナーズマンションです。広々とした13.7帖のLDKを含む2LDK(51.52㎡)は、お一人暮らしはもちろん、お二人での生活にもゆとりをもたらします。 インターネット利用料無料は嬉しいポイント。オートロックは非接触対応で安心感があり、宅配BOXも完備しているので、お忙しい方にも便利です。室内にはウォークインクローゼットやパントリー、全居室収納があり、収納力も多数あり。追い焚き機能付きバスやシステムキッチン、エアコン、ガス暖房など、快適な毎日をサポートする設備が充実しています。 徒歩圏内にはコンビニ、銀行、ドラッグストア、スーパー、小学校、中学校が揃い、生活利便性も良好。駐車場もございますので、お車をお持ちの方も安心です。 快適さとデザイン性を兼ね備えたこのお部屋で、素敵な新生活をぜひご検討ください。
| 賃料・費用 |
9万1,000円(+管理費等 6,000円)
敷なし礼9万1,000円(1ヶ月)仲なし
敷引・償却金:なし
|
|---|---|
| 間取・専有 |
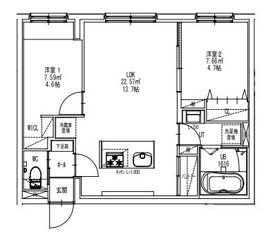
2LDK(51.52m²)└ LDK13.7帖 洋室4.6帖 洋室4.7帖
|
| 住所 | 北海道札幌市白石区本郷通4丁目北3-14 |
| 交通 | 白石駅(徒歩14分)|南郷7丁目駅(徒歩14分)道順を見る |
| 築年月 | 築1年(2024年8月) |
| 駐車場 |
あり (1万3,200円/台) 駐車可能台数:1台
12~3月RH料¥3300(月額) |
空室確認、見学、詳細を知りたい方はこちら!
お電話の際は「連合隊の物件」とお伝えください。
情報掲載期限:あと28日(更新日 2026/3/26)
- 物件写真・概要
- 周辺地図
-
おすすめポイント
- バス/トイレ別
- オートロック
- 2階以上
- 都市ガス
- 室内洗濯機置場
- 駐車場あり
- エアコン付
- 独立洗面台
- 追い焚き風呂
- ペット相談可
- デザイナーズ
- 敷金・礼金0円
- 近くて便利!徒歩5分以内にある施設
- 4分
4分- 4分
4分- 周辺施設を地図で確認
交通色がついているアイコンをクリックすると、本物件までの道順を見ることができます。
物件概要
所在階/建物の階建 4階(406) / 地上5階建 総戸数 28戸 主要採光面 北西 構造 鉄筋コンクリート(RC)造 契約期間 2年間 更新料/更新手数料 なし 住宅保険 2万円(2年間) その他費用 毎月の費用 - 24時間管理費:1,100円
一時金 - 水廻消毒料:1万6,500円
入居可能時期 2026年5月下旬(2026年4月30日退去予定) 管理人 巡回 取引態様 代理 物件No 設備・特徴 - 複数路線利用可
- エレベーター
- 駐輪場
- デザイナーズ
- 室内洗濯機置場
- ウォークインクローゼット
- シューズボックス
- 全居室収納あり
- バス/トイレ別
- 温水洗浄トイレ
- 独立洗面台
- シャワー付洗面化粧台
- ガスコンロ
- システムキッチン
- LPガス
- エアコン付
- ガス暖房
- オートロック
- モニタ付インターホン
- 宅配BOX
- インターネット利用料無料
- 追い焚き風呂
- BSアンテナ
- コンロ3口以上
備考 ※室内写真は前回募集時のものです。 ※ 保証会社必須(エポスBS2.102プラン:初回30%、月額1%) ※火災保険加入必須(保険料は補償内容により異なります) ※ガス料金→0~24.9㎥検針、25~50㎥¥18,000+税、50.1㎥~検針 ※禁煙特約あり(既存入居者適用外、新規契約分) 学区色がついているアイコンをクリックすると、本物件までの道順を見ることができます。
主な周辺施設色がついているアイコンをクリックすると、本物件までの道順を見ることができます。
-
ホームページはこちら
北海道知事 石狩(6) 第6531号
(株)ほくせい
※連合隊は物件情報の精度向上に努めています:「物件情報に誤りがある」「成約済みである」などお気付きの点がございましたらこちらよりご連絡ください。
写真枚数:22枚
■賃貸物件の入居率の高さの秘密は【入居時費用分割】契約時費用を分割して毎月のお家賃と一緒にお支払いできます(審査別途・保証人が居ない方も相談可能・火災保険対象外)