TKビル
ここに注目!仙台駅から大通り一本の非常に分かりやすい立地です。飲食店・銀行・郵便局などが近隣に揃っており、利便性が高い物件です。JR仙台駅を始め、地下鉄南北線・東西線も利用できますので、公共交通機関での移動が便利です。
| 賃料・費用 |
44万8,100円
(+管理費等 -円)
坪単価:約1.2万円/坪
敷244万4,182円礼なし仲44万8,100円
|
|---|---|
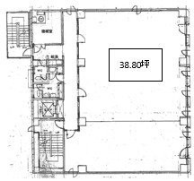
| 専有面積 | 128.26m² (38.79坪) |
| 住所 | 宮城県仙台市青葉区一番町2丁目2-11 |
| 交通 | 仙台駅(徒歩6分)|広瀬通駅(徒歩7分) |
| 階/階建 | 4階 / 9階建 |
| 築年月 | 築42年(1983年10月) |
| 駐車場 |
あり (3万3,000円/台)
|
空室確認、見学、詳細を知りたい方はこちら!
お電話の際は「連合隊の物件」とお伝えください。
情報掲載期限:あと27日(更新日 2025/12/20)
- 物件写真・概要
- 周辺地図
-
空室確認、見学、詳細を知りたい方はこちら!
おすすめポイント
- 即入居可
- 駐車場あり
- 男女別トイレ
- エアコン付
交通色がついているアイコンをクリックすると、本物件までの道順を見ることができます。
物件概要
所在階/建物の階建 4階(4F) / 地上9階建 主要採光面 構造 鉄骨鉄筋コンクリート(SRC)造 間取り 契約期間 2年間 権利金 住宅保険 引渡し 即時 管理人 取引態様 仲介 物件No 設備・特徴 - エアコン付
- エレベーター
- 男女別トイレ
- 個別空調
- 24時間利用可
備考 事務所 申込内容により保証会社加入をお願いする場合がございます。(保証料等借主負担) 主な周辺施設色がついているアイコンをクリックすると、本物件までの道順を見ることができます。
-
ホームページはこちら
宮城県知事 (9) 第3195号
(株)エンタツ
※連合隊は物件情報の精度向上に努めています:「物件情報に誤りがある」「成約済みである」などお気付きの点がございましたらこちらよりご連絡ください。
写真枚数:17枚
イオン 仙台一番町店まで167m
ウェスティンホテル仙台まで339m
トヨタレンタリース 仙台駅西口店まで312m
藤崎大町館まで436m
仙台市近郊の事務所・店舗はエンタツへご相談ください♪
東北の玄関口、仙台駅から徒歩3分の店舗です! また当ビルは自走式駐車場も完備しておりますので、電車・新幹線・車でも来店しやすい環境でお待ちしております♪