橋市盛岡ビル
ここに注目!盛岡駅から徒歩5分の好立地!北上川を覗く景観♪
| 賃料・費用 |
16万5,000円
(+管理費等 -円)
坪単価:約1.4万円/坪
敷45万円礼なし仲16万5,000円
|
|---|---|
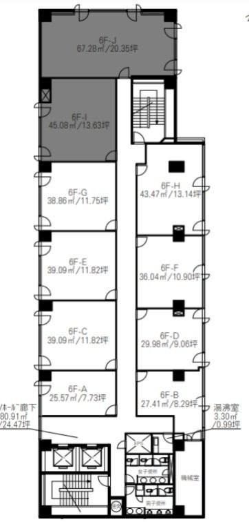
| 専有面積 | 39.09m² (11.82坪) |
| 住所 | 岩手県盛岡市盛岡駅前北通1-10 |
| 交通 | 盛岡駅(徒歩5分) |
| 階/階建 | 6階 / 8階建 |
| 築年月 | 築36年(1990年1月) |
| 駐車場 |
あり (2万2,000円/台)
|
空室確認、見学、詳細を知りたい方はこちら!
お電話の際は「連合隊の物件」とお伝えください。
情報掲載期限:あと19日(更新日 2026/2/16)
- 物件写真・概要
- 周辺地図
-
空室確認、見学、詳細を知りたい方はこちら!
おすすめポイント
- 即入居可
- 駅徒歩5分以内
- 駅前立地
- 駐車場あり
- 男女別トイレ
- エアコン付
交通色がついているアイコンをクリックすると、本物件までの道順を見ることができます。
物件概要
所在階/建物の階建 6階(6F-E) / 地上8階建 主要採光面 構造 鉄骨鉄筋コンクリート(SRC)造 間取り 契約期間 2年間 権利金 住宅保険 引渡し 即時 管理人 取引態様 仲介 物件No 設備・特徴 - エアコン付
- セントラル空調
- 駅前立地
- 男女別トイレ
- 24時間利用可
- その他:ウォシュレット・公共下水・エアコン・エレベーター・上下水道・電気
備考 事務所 主な周辺施設色がついているアイコンをクリックすると、本物件までの道順を見ることができます。
-
ホームページはこちら
宮城県知事 (9) 第3195号
(株)エンタツ
※連合隊は物件情報の精度向上に努めています:「物件情報に誤りがある」「成約済みである」などお気付きの点がございましたらこちらよりご連絡ください。
写真枚数:10枚
仙台市近郊の事務所・店舗はエンタツへご相談ください♪
東北の玄関口、仙台駅から徒歩3分の店舗です! また当ビルは自走式駐車場も完備しておりますので、電車・新幹線・車でも来店しやすい環境でお待ちしております♪