萩野町Mビル
ここに注目!仙台東部道路の仙台東インターへ接続する、産業道路へアクセス良好な萩野町。駐車場は複数台も相談可能です。営業車で高速道路を利用される企業様に最適!仙台医療センターも近く、医療・製薬メーカーの営業拠点としてもおすすめできます。コンビニはローソン、ファミマが利用できます。ビル1階には内科が入居しておりますので、勤務中の体調不良時にも利用できて安心です♪
| 賃料・費用 |
11万3,718円
(+管理費等 4万3,592円)
坪単価:約6,600円/坪
敷62万280円礼11万3,718円(1ヶ月)仲11万3,718円
|
|---|---|
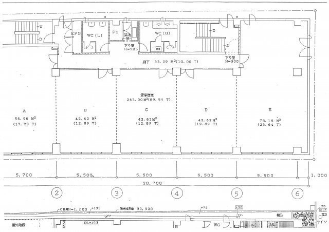
| 専有面積 | 56.96m² (17.23坪) |
| 住所 | 宮城県仙台市宮城野区萩野町1丁目11-1 |
| 交通 | 宮城野原駅(徒歩9分) |
| 階/階建 | 2階 / 3階建 |
| 築年月 | 築33年(1993年3月) |
| 駐車場 |
あり (1万2,100円/台)
|
空室確認、見学、詳細を知りたい方はこちら!
お電話の際は「連合隊の物件」とお伝えください。
情報掲載期限:あと24日(更新日 2026/4/13)
- 物件写真・概要
- 周辺地図
-
▼クリックで左の拡大画像が変わります。 すべての写真を拡大
空室確認、見学、詳細を知りたい方はこちら!
おすすめポイント
- 即入居可
- 駐車場あり
- 男女別トイレ
- エアコン付
交通色がついているアイコンをクリックすると、本物件までの道順を見ることができます。
物件概要
所在階/建物の階建 2階(2F-A) / 地上3階建 主要採光面 構造 鉄筋コンクリート(RC)造 間取り 契約期間 2年間 権利金 住宅保険 引渡し 即時 管理人 取引態様 仲介 物件No 設備・特徴 - エアコン付
- 男女別トイレ
- 個別空調
- その他:公共下水・エアコン・上下水道・電気
備考 機械警備料 7720円(月額) 事務所 入口突き出しプレート、館銘板作成代別途 主な周辺施設色がついているアイコンをクリックすると、本物件までの道順を見ることができます。
-
ホームページはこちら
宮城県知事 (9) 第3195号
(株)エンタツ
※連合隊は物件情報の精度向上に努めています:「物件情報に誤りがある」「成約済みである」などお気付きの点がございましたらこちらよりご連絡ください。
写真枚数:18枚
田島内科医院まで1m
ヤマザワ調剤薬局 萩野町店まで70m
ファミリーマート 仙台萩野町四丁目店まで229m
ほっともっと 仙台宮千代店まで178m
仙台市近郊の事務所・店舗はエンタツへご相談ください♪
東北の玄関口、仙台駅から徒歩3分の店舗です! また当ビルは自走式駐車場も完備しておりますので、電車・新幹線・車でも来店しやすい環境でお待ちしております♪